Устройство и принцип работы
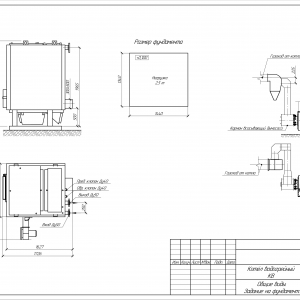
Водогрейный котел КВ-ТС-0.2 состоит из конвективного и топочного блоков котла, которые оснащены опорами, монтированные к нижним коллекторам. Подогреватель воздуха крепится к опорной раме. Несущий каркас у котельного оборудования отсутствует.
Принцип работы котла КВ-ТС-0.2 заключается в слоевом сжигании твердого топлива. Таким образом, горючий материал сжигается локально в определенном слое, а не по всей топке. Водогрейный процесс происходит за счет подачи твердого топлива в топочное устройство котельного оборудования. В результате горения осуществляется генерирование потоков горячего воздуха, которые циркулируют по трубопроводной системе, за счет чего возникает повышение температуры воды в котле.
Условное обозначение
Водогрейный котел КВ-ТС-0.2, где:
- К – котел;
- В – водогрейный;
- Т – твердотопливный;
- С – слоевое сжигание топлива;
- 0.2 — мощность котла, МВт.
Особенности и преимущества
- Высокий процент КПД (более 80%);
- Длительность эксплуатации;
- Возможность автоматизации процессов;
- Эффективный расход топлива за счет слоевого сжигания;
- Нет необходимости в предварительной водоподготовке;
- Вместительность топливной камеры.
Размещение и установка
Водогрейный котел КВ-ТС-0.2 должен быть установлен специалистами согласно необходимым требованиям с учетом «Правил устройства и безопасной эксплуатации паровых и водогрейных котлов». Котел имеет значительный вес, поэтому устанавливается только на пол, на специально подготовленную поверхность. Для установки котла не требуется заливать фундамент: котел ставится на раму и опоры, а опоры крепятся к подготовленной поверхности болтами.
Эксплуатация и техническое обслуживание
Производить ремонтные работы и техническое обслуживание могут только квалифицированные специалисты, имеющие специальное разрешение. При организации технического обслуживания следует учитывать требования «Правил устройства и безопасной эксплуатации паровых и водогрейных котлов».
Комплектация
Котел КВ-ТС-0.2 поставляется в моноблочном (котел) или двублочном (котел и топка) исполнении. При необходимости, поставляется третий блок – воздухоподготовитель. Топки котла КВ-ТС изготовлены из труб, как и конвективные пакеты. Агрегаты комплектуются колосниковыми цепными решетками обратного хода с пневмомеханическими забрасывателями.






