Устройство и принцип работы
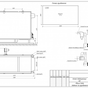
Водогрейный котел КВ-ТС-2 состоит из конвективного и топочного блоков котла, которые оснащены опорами, монтированные к нижним коллекторам. Подогреватель воздуха крепится к опорной раме. Несущий каркас у котельного оборудования отсутствует.
Принцип работы котла КВ-ТС-2 заключается в слоевом сжигании твердого топлива. Таким образом, горючий материал сжигается локально в определенном слое, а не по всей топке. Водогрейный процесс происходит за счет подачи твердого топлива в топочное устройство котельного оборудования. В результате горения осуществляется генерирование потоков горячего воздуха, которые циркулируют по трубопроводной системе, за счет чего возникает повышение температуры воды в котле.
Условное обозначение
Водогрейный котел КВ-ТС-2, где:
- К – котел;
- В – водогрейный;
- Т – твердотопливный;
- С – слоевое сжигание топлива;
- 2 — мощность котла, МВт.
Особенности и преимущества
- Высокий процент КПД (более 80%);
- Длительность эксплуатации;
- Возможность автоматизации процессов;
- Эффективный расход топлива за счет слоевого сжигания;
- Нет необходимости в предварительной водоподготовке;
- Вместительность топливной камеры.
Размещение и установка
Котел серии КВ-ТС-2 устанавливается согласно схеме отопления. Установкой котельного оборудования могут заниматься только специалисты, обладающие необходимой квалификацией. При установке важно соблюдать нормы СНиП и руководствоваться «Правилами устройства и безопасной эксплуатации паровых и водогрейных котлов».
Эксплуатация и техническое обслуживание
Производить ремонтные работы и техническое обслуживание могут только квалифицированные специалисты, имеющие специальное разрешение. При организации технического обслуживания следует учитывать требования «Правил устройства и безопасной эксплуатации паровых и водогрейных котлов».
Комплектация
Котел серии КВ-ТС-2 поставляется в заводской сборке. В комплекте имеется все необходимое для установки котла, в том числе запорная арматура и контрольно-измерительные приборы.


















