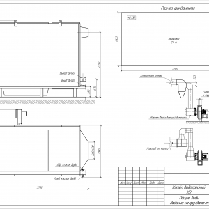
Устройство и принцип работы
Устройство твердотопливного котельного агрегата серии КВ-ТС-4 состоит из топливной и конвективной части. Принцип работы заключается в слоевом сжигании топливной массы. Таким образом, процесс горения происходит не по всей поверхности топливной камеры, а в определенном слое.
Топливо подается в топку, начинается процесс горения, в результате которого выделяется тепло и нагревается система трубопровода. Полученная горячая вода может использоваться как для отопления помещений, так и для обеспечения нужд горячего водоснабжения.
Условное обозначение
Водогрейный котел КВ-ТС-4, где:
- К – котел;
 - В – водогрейный;
 - Т – твердотопливный;
 - С – слоевое сжигание топлива;
 - 4 — мощность котла, МВт.
 
Особенности и преимущества
- Высокий процент КПД (не менее 85%) обусловлен большим объемом топливной камеры и стимуляцией процесса горения;
 - Нет необходимости в предварительной водоподготовке;
 - Длительный срок эксплуатации;
 - Топливо расходуется полностью, что делает устройство более экономичным в использовании;
 - Максимальная заводская сборка.
 
Размещение и установка
Особенных требований к установке котла КВ-ТС-4 нет, главное обеспечить надежную систему циркуляции воды, чтобы жидкость не перегревалась и не создавала лишнюю нагрузку на емкость с водой, и на весь котел в целом. К обслуживанию котла можно отнести естественно заброску топлива рабочим, а также очистку контейнера от золы и сажи в периодическом режиме (в зависимости от зольности топлива, которое используется в котле).
Эксплуатация и техническое обслуживание
Производить ремонтные работы и техническое обслуживание могут только квалифицированные специалисты, имеющие специальное разрешение. При организации технического обслуживания следует учитывать требования «Правил устройства и безопасной эксплуатации паровых и водогрейных котлов».
Комплектация
Котел серии КВ-ТС-4 поставляется в заводской сборке. В комплекте имеется все необходимое для установки котла, в том числе запорная арматура и контрольно-измерительные приборы.













