Угольный водогрейный котел КВр предназначен для стационарных котельных без систем механической подачи угли и без механического золоотведения. Также котел данного типа может применяться в модульных и транспортабельных котельных. Котел отличается простотой в эксплуатации, безопасен и экономичен в использовании. За счет особенностей конструкции КПД котла превышает 80% и сохраняет этот показатель в течение всего срока службы.
Устройство и принцип работы
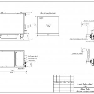
Водогрейный котел КВа-0.6 состоит из корпуса котла, который находится под давлением сетевой воды, дверей котла, блока безопасности котла с реле максимального давления, манометром, предохранительным клапаном и устройством для удаления воздуха, дымохода с взрывным клапаном и дренажом для отведения конденсата, блочной вентиляторной горелки, блока управления.
Процесс возгорания происходит при смешивании воздуха с топливом.
Условное обозначение
Котел КВа-0.6, где:
- К – котел;
 - В – водогрейный;
 - а – автоматизированная горелка;
 - 0.6 – теплопроизводительность.
 
Особенности и преимущества
- КПД более 90% обеспечивается большой топливной камерой, которая способствует полноценному сгоранию топлива и помогает рационально использовать горючее;
 - Минимальные затраты на горючее способствует экономичному использованию;
 - Устойчивость к образованию накипи образуется благодаря гидравлической схеме, предотвращающей застои и налипания, появление которых снизило бы КПД при длительном использовании котла;
 - Совместим с множеством горелок, позволяя при выборе ориентироваться на собственные нужны;
 - Автоматика безопасности сокращает вероятность поломки и увеличивает срок службы оборудования;
 - Автоматизация процесса делает работу котельной автономной и упрощает труд кочегара;
 - Низкие требования к качеству воды избавляют от необходимости подготавливать воду перед использованием;
 - Небольшой размер котла позволит уместить его даже в небольших котельных;
 - Минимальные монтажные работы сэкономят время и средства при установке котельного оборудования.
 
Размещение и установка
Важно установить котел КВа-0.6 ровно, используя уровень, и обеспечить доступ воздуха к системам воздухоподачи.
Собранный котел подключается к системам водоснабжения, на него устанавливается запорная арматура и КИП. Финальной стадией сборки является монтаж газовыводящей системы и установка элементов управления. После проверки сборки котла и его тестового запуска, котел КВа-0.6 готов к эксплуатации.
При организации технического обслуживания следует учитывать требования «Правил устройства и безопасной эксплуатации паровых и водогрейных котлов».
Эксплуатация и техническое обслуживание
Водогрейный котел КВа-0.6 очень прост в эксплуатации. После монтажа котел подключается к водопроводной системе и начинает работу. Котел КВа-0.6 полностью автономен, не требует специальной подготовки воды. Помимо простоты использования котел КВа-0.6 имеет еще и более длительный срок службы, чем, например, простой бойлер.
Важно отметить, что производить ремонтные работы и техническое обслуживание могут только квалифицированные специалисты, имеющие специальное разрешение. При организации технического обслуживания следует учитывать требования «Правил устройства и безопасной эксплуатации паровых и водогрейных котлов».
Комплектация
Котлы КВа-0.6 доставляются в максимально собранном заводском виде и комплектуются всем необходимым для правильной установки прибора: запорной арматурой, контрольно-измерительными приборами и инструкцией по эксплуатации. Горелка в комплект не входит.









