Устройство и принцип работы
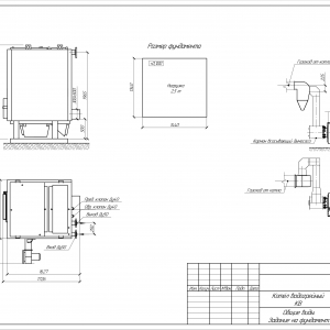
Котёл КВм-0.2 — это сварной блок из стальных труб, рамы и каркаса покрытый термоизоляционными материалами; сверху обшит листовой сталью. Состоит из топочной и конвективной частей.
В топочной части процесс горения топлива идёт на колосниковой решётке. Конвективная часть обеспечивает теплопередачу нагреваемой воде и понижение температуры уходящих газов, которые перемещаются в газоход, расположенный на задней стенке котла. Для очистки конвективных поверхностей предусмотрен люк над конвективной частью. Подача топлива происходит механически с помощью забрасывателя или из бункера самотёком.Удаление шлака происходит автоматически при движении колосникового полотна топки. Для механизированной загрузки топлива применяют несколько моделей топочных устройств.
Условное обозначение
Водогрейный котел КВм-0.2 на угле, где:
- К – котел;
 - В – водогрейный;
 - м – механическая топка;
 - 0.2 – мощность котла, МВт.
 
Особенности и преимущества
- Высокий показатель КПД;
 - Развитая конвективная поверхность, способствующая увеличению срока службы оборудования;
 - Отсутствие водоподготовки;
 - Автоматизация топливоподачи и шлаковыведения;
 - Компактный размер.
 
Размещение и установка
Котел КВм-0.2 должен быть установлен специалистами. Котел имеет значительный вес, поэтому устанавливается только на пол, на специально подготовленную поверхность. К бетонному фундаменту крепится топка, на которую ставится блок котла. Важно обеспечить доступ кислорода к вентиляционной системе и установить оборудование ровно, используя уровень. Далее собранный котел присоединяется к трубопроводу, устанавливаются запорные устройства, все необходимая арматура и контрольно-измерительные приборы. В конце производится монтаж газовыводящей системы и установка элементов управления.
Эксплуатация и техническое обслуживание
За счет механической топки и системы шлакоотведения, котел КВм-0.2 работает автономно. Все ремонтные работы, включая технические осмотры, должны проводиться квалифицированными специалистами, которые имеют специальное разрешение. При организации технического обслуживания следует учитывать требования «Правил устройства и безопасной эксплуатации паровых и водогрейных котлов».
Комплектация
Котел КВм-0.2 поставляется в виде двух блоков (блок котла и механическая топка) с щитком управления. Котел укомплектован всем необходимым для правильной установки: клапанами, запорной арматурой и КИП.









