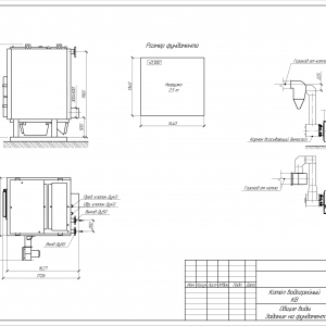
Устройство и принцип работы
Котел КВм-0.25 состоит из механической топки, шнека для подачи топлива, системы трубопровода и каркаса, покрытого теплоизоляционным материалом. Шнеком топливо транспортируется в бункер котла. Во время перемещения топливо насыщается кислородом, что способствует его полноценному горению. Из бункера топливо попадает в топку, где и происходит процесс горения. За счет выделившегося тепла происходит нагревание воды в системе трубопровода, которая уже направляется на нужды потребителя. Газы, образовавшееся в процессе горения, дважды проходят по конвективной части, а затем выводятся.
Условное обозначение
Водогрейный котел КВм-0.25 на древесных отходах, где:
- К – котел;
- В – водогрейный;
- м – механическая топка;
- 0.25 – мощность котла.
Особенности и преимущества
- КПД более 80% обеспечивается за счет большой топливной камеры и системы вентиляции, обеспечивающих полноценное и равномерное сгорание топлива, что помогает рационально использовать и экономить горючее;
- Низкая температура газов сохраняется за счет развитой конвективной поверхности, что увеличивает срок службы оборудования;
- Устойчивости к накипеобразованию способствует гидравлическая схема, предотвращающая застои и появление накипи, образование которой снизило бы КПД при длительном использовании котла;
- Низкие требования к качеству воды избавляют от необходимости подготавливать воду перед использованием;
- Механизация процесса минимизирует участие человека и облегчает труд рабочих;
- Минимальные монтажные работы позволят сэкономить время и средства при установке котельного оборудования.
Размещение и установка
Котел КВм-0.25 устанавливается на фундамент и крепится анкерными болтами. Далее к нему монтируется топка и системы автоматизации, если таковые имеются. Важно установить котел ровно, используя уровень, и обеспечить доступ воздуха к системам воздухоподачи.
Собранный котел подключается к системам водоснабжения, на него устанавливается запорная арматура и КИП. Финальной стадией сборки является монтаж газовыводящей системы и установка элементов управления. После проверки сборки котла и его тестового запуска, котел готов к эксплуатации.
Эксплуатация и техническое обслуживание
За счет механической топки и системы золоотведения, котел КВм-0.25 работает автономно. Все ремонтные работы, включая технические осмотры, должны проводиться квалифицированными специалистами, которые имеют специальное разрешение. При организации технического обслуживания следует учитывать требования «Правил устройства и безопасной эксплуатации паровых и водогрейных котлов».
Комплектация
Котел КВм-0.25 доставляется отдельными блоками, которые требуют сборки. При заказе котел комплектуется всем необходимым, чтобы правильно установить прибор: запорной арматурой, контрольно-измерительными приборами, частями вентиляционной системы, а также – дымососом и золоуловителем, если есть необходимость очистки дымовых газов.








