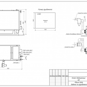
Устройство и принцип работы
Котел КВм-0.5 – это водогрейных механический котел, состоящий из блока топки, системы трубопроводы и теплоизоляционного каркаса. Топливо загружается в бункер, откуда механическим путем попадает в топку. Начинается процесс горения, в результате которого нагревается энергоноситель в трубопроводной системе. Нагретая вода может использоваться потребителями для обеспечения нужд отопления и горячего водоснабжения.
Газы, образовавшиеся в процессе горения, дважды проходят через конвективную часть, полностью отдают тепло и выводятся. Зола, образовавшийся в результате горения, выводится из системы механическим способом.
Условное обозначение
Водогрейный котел КВм-0.5 на древесных отходах, где:
- К – котел;
 - В – водогрейный;
 - м – механическая топка;
 - 0.5 – мощность котла.
 
Особенности и преимущества
- Высокий показатель КПД;
 - Развитая конвективная поверхность, способствующая увеличению срока службы оборудования;
 - Отсутствие водоподготовки;
 - Автоматизация топливоподачи и золовыведения;
 - Системы сжигания топлива, адаптированные специально под ДВО;
 - Компактный размер.
 
Размещение и установка
Котел КВм-0.5 на древесных отходах поставляется в удобном двублочном исполнении в полной заводской сборке, и легко стыкуются при монтаже. Устанавливается на предварительно выровненную поверхность без необходимости в строительстве специального фундамента. Крепится к поверхности при помощи анкерных болтов.
Монтаж котельного оборудования производится с соблюдением СНиП 11-35-76 «Котельные установки» и «Правил устройства и безопасной эксплуатации паровых и водогрейных котлов». Установка и пуско-наладочные работы выполняют специалисты, которые имеют разрешение на проведение данных работ.
Эксплуатация и техническое обслуживание
После сборки и монтажа котел подключается к водопроводной системе и начинает работу. Котел КВм-0.5 работает автономно и не требует вмешательства человека в процессе своей работы. Помимо простоты использования котел КВм имеет еще и длительный срок службы с сохранением высокого показателя КПД на протяжении всего срока.
Важно отметить, что производить ремонтные работы и техническое обслуживание могут только квалифицированные специалисты, имеющие специальное разрешение. При организации технического обслуживания следует учитывать требования «Правил устройства и безопасной эксплуатации паровых и водогрейных котлов».
Комплектация
Котел КВм-0.5 доставляется отдельными блоками, которые требуют сборки. При заказе котел комплектуется всем необходимым, чтобы правильно установить прибор: запорной арматурой, контрольно-измерительными приборами, частями вентиляционной системы, а также – дымососом и золоуловителем, если есть необходимость очистки дымовых газов.









