Устройство и принцип работы
Водогрейные котлы КВм-0.8 — твердотопливное устройство с механическими колосниковыми решетками из жаропрочного металла, которые запускаются в работу при помощи гидравлической системы. Оборудование состоит из котла и топки. Топливо закладывается в бункер, затем, механическим путем, попадает в топку с маленьким количеством кислорода. На данном этапе происходит тление. Такое устройство дает возможность испарениям из топлива не попадать в зону горения и использовать материал любой влажности. Образовавшиеся в процессе горения газы попадают в следующую камеру, где под действием электрической искры загораются и проходят дважды через конвективную часть, что позволяет полностью отдать тепло. Твердый топочный материал горит при одновременном движении по колосникам, горение заканчивается, когда топливо превращается в золу. Продукт горения удаляется из системы механическим путем, посредством движения колосниковой части, в отсек шлакоудаления. Благодаря догоранию углекислого газа, снижаются риски загрязнения атмосферы. Раздельное горение летучих веществ и твердых фракций дает оборудованию большое преимущество и отличает его от других водогрейных установок. Котел оснащен системой дополнительной подачи воздуха, что позволяет повысить КПД до 90%. Сетевым насосом обеспечивается принудительная циркуляция воды, а подпитка происходит при помощи подпиточного насоса. Гидравлическая система оборудования препятствует возникновению накипи, позволяя использовать воду любой жесткости, не применяя химических веществ.
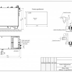
Условное обозначение
Водогрейный котел КВм-0.8 на древесных отходах, где:
- К – котел;
 - В – водогрейный;
 - м – механическая топка;
 - 0.8 – мощность котла.
 
Особенности и преимущества
- Высокий показатель КПД;
 - Развитая конвективная поверхность, способствующая увеличению срока службы оборудования;
 - Отсутствие водоподготовки;
 - Автоматизация топливоподачи и золовыведения;
 - Системы сжигания топлива, адаптированные специально под ДВО;
 - Компактный размер.
 
Размещение и установка
Монтаж оборудования производится специалистом в соответствии техникой безопасности. Монтируется котел КВм-0.8 к бетонному фундаменту крепежными анкерами.
Важно! При монтаже котла нужно использовать уровень, очень важно установить оборудование ровно и организовать доступ воздуха к системам. Перед запуском оборудования в работу, следует проверить циркуляцию воды, наличие напряжения.
Эксплуатация и техническое обслуживание
За счет механической топки и системы золоотведения, котел КВм-0.8 работает автономно. Все ремонтные работы, включая технические осмотры, должны проводиться квалифицированными специалистами, которые имеют специальное разрешение. При организации технического обслуживания следует учитывать требования «Правил устройства и безопасной эксплуатации паровых и водогрейных котлов».
Комплектация
Котел КВм-0.8 доставляется отдельными блоками, которые требуют сборки. При заказе котел комплектуется всем необходимым, чтобы правильно установить прибор: запорной арматурой, контрольно-измерительными приборами, частями вентиляционной системы, а также – дымососом и золоуловителем, если есть необходимость очистки дымовых газов.











