Устройство и принцип работы
Топка ТЛПХ — топка ленточная прямого хода. Уже из данной расшифровки становится ясно, что здесь используется механическая колосниковая решетка c прямым ходом. Данная конфигурация котла КВм-{{moshchnost-mvt}} выполняется из двух частей: первым блоком является непосредственно котел, вторым служит топка.
Котел КВм-{{moshchnost-mvt}} целиком сварен. В его состав входит трубная система из каркаса, труб и рамы. Компоновка котла сделана в форме буквы «П». В процессе работы котла, горячие газы совершают 2 хода в конвективной части и выводятся наружу через верхнюю часть устройства в задней его стенке. Здесь же вмонтирован люк для очистки от сажи конвективной части котла.
Принцип, по которому работает котел КВм-{{moshchnost-mvt}}, вкратце описывается так. Уголь при помощи транспортера подачи топлива поставляется в бункер топки, где он самостоятельно подается на движущуюся ленту, а затем на решетку. Тут уголь сгорает в слое толщиной примерно 100…200 мм. Толщина корректируется в угольном ящике специальным регулятором слоя. Интенсивность горения угля обеспечивается вентилятором, постоянно подающим необходимый для нормальной работы кислород. Шлак удаляется работающим колосниковым полотном, которое, как уже говорилось ранее, механизировано.
Условное обозначение
Водогрейный котел КВм-{{moshchnost-mvt}} на угле с ТЛПХ, где:
- К – котел;
- В – водогрейный;
- м – механическая топка;
- {{moshchnost-mvt}} – мощность котла, МВт;
- Т – топка;
- Л – ленточная решетка;
- П – прямого;
- Х – хода.
Особенности и преимущества
- КПД более 80% обеспечивается за счет большой топливной камеры и системы вентиляции, обеспечивающих полноценное и равномерное сгорание топлива, что помогает рационально использовать и экономить горючее.
- Низкая температура газов сохраняется за счет развитой конвективной поверхности, что увеличивает срок службы оборудования.
- Низкие требования к качеству воды избавляют от необходимости подготавливать воду перед использованием.
- Автоматизация работы котельной за счет механической топки.
- Минимальные монтажные работы позволят сэкономить время и средства при установке котельного оборудования.
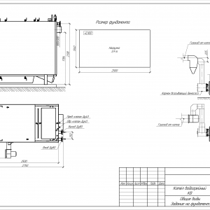
Размещение и установка
Котел КВм-{{moshchnost-mvt}} должен быть установлен специалистами. Котел имеет значительный вес, поэтому устанавливается только на пол, на специально подготовленную поверхность. Котел устанавливается на подготовленный фундамент, к нему монтируется топка. Важно обеспечить доступ кислорода к вентиляционной системе и установить оборудование ровно, используя уровень. Далее собранный котел присоединяется к трубопроводу, устанавливаются запорные устройства, все необходимая арматура и контрольно-измерительные приборы. В конце производится монтаж газовыводящей системы и установка элементов управления.
Эксплуатация и техническое обслуживание
После сборки и монтажа котел КВм-{{moshchnost-mvt}} подключается к водопроводной системе и начинает работу. Котел КВм-{{moshchnost-mvt}} работает автономно и не требует вмешательства человека в процессе своей работы. Помимо простоты использования котел КВм-{{moshchnost-mvt}} имеет еще и длительный срок службы с сохранением высокого показателя КПД на протяжении всего срока.
Важно отметить, что производить ремонтные работы и техническое обслуживание могут только квалифицированные специалисты, имеющие специальное разрешение. При организации технического обслуживания следует учитывать требования «Правил устройства и безопасной эксплуатации паровых и водогрейных котлов».
Комплектация
Котел КВм-{{moshchnost-mvt}} поставляется в виде двух блоков (блок котла и блока топки) с щитком управления. Котел укомплектован всем необходимым для правильной установки: клапанами, запорной арматурой и КИП.










