Устройство и принцип работы
Устройство котла КВм-{{moshchnost-mvt}} состоит из механической топки, системы трубопровода и металлического каркаса, обшитого теплоизоляционным материалом.
Топка ТЛЗМ устанавливается вертикально под блоком водогрейного котла. Она состоит из чугунной колосниковой решетки, колосниковой рамы, заднего вала, переднего вала редуктора с электродвигателем, и монтажных деталей. Дополнительно механическая топка ТЛЗМ может комплектоваться котельной автоматикой, которая проектируется и собирается по индивидуальной схеме от заказчика.
Принцип действия топки ТЛЗМ основан на непрерывной подаче топлива на горящий слой. В ней предусмотрены два способа заброса топлива: основной – механический, и пневмомеханический – он оптимизирует сгорание частиц мелкой фракции, обеспечивая полноценный расход топлива.
Условное обозначение
Водогрейный котел КВм-{{moshchnost-mvt}} на угле с ТЛЗМ, где:
- К – котел;
- В – водогрейный;
- м – механическая топка;
- {{moshchnost-mvt}} – мощность котла, МВт;
- Т – топка;
- Л – ленточная топливоподача;
- З – забрасыватель;
- М – механическая.
Особенности и преимущества
- КПД более 80% обеспечивается за счет большой топливной камеры и системы вентиляции, обеспечивающих полноценное и равномерное сгорание топлива, что помогает рационально использовать и экономить горючее.
- Низкая температура газов сохраняется за счет развитой конвективной поверхности, что увеличивает срок службы оборудования.
- Низкие требования к качеству воды избавляют от необходимости подготавливать воду перед использованием.
- Автоматизация работы котельной за счет механической топки.
- Минимальные монтажные работы позволят сэкономить время и средства при установке котельного оборудования.
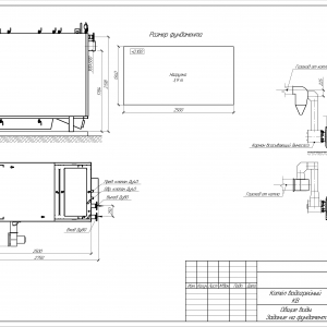
Размещение и установка
Данный котел КВм-{{moshchnost-mvt}} крепится анкерными болтами к фундаменту, при этом имеется требование ровной его установки с использованием уровня, к системам его воздухоподачи важно обеспечить приток воздуха. Затем уже к нему присоединяется топка и автоматика, где это требуется.
После этого присоединяются системы водоснабжения, ставятся контрольно-измерительные приборы и запорные элементы. В самом конце монтируется система вывода газов и элементы управления. Данный котел имеет горизонтальную компоновку.
Эксплуатация и техническое обслуживание
После сборки и монтажа котел КВм-{{moshchnost-mvt}} подключается к водопроводной системе и начинает работу. Котел КВм-{{moshchnost-mvt}} работает автономно и не требует вмешательства человека в процессе своей работы. Помимо простоты использования котел КВм-{{moshchnost-mvt}} имеет еще и длительный срок службы с сохранением высокого показателя КПД на протяжении всего срока.
Важно отметить, что производить ремонтные работы и техническое обслуживание могут только квалифицированные специалисты, имеющие специальное разрешение. При организации технического обслуживания следует учитывать требования «Правил устройства и безопасной эксплуатации паровых и водогрейных котлов».
Комплектация
Котел КВм-{{moshchnost-mvt}} поставляется в виде двух блоков (блок котла и блока топки) с щитком управления. Котел укомплектован всем необходимым для правильной установки: клапанами, запорной арматурой и КИП.












