В наличии на складе

Котёл КВм-1,16 на угле с топкой ТЧЗМ

340 000

Доставим в

Основные характеристики
Вид топкиТЧЗм
Вид топливаБурый уголь
ТипКВм
Вид топливаКаменный уголь

Котел КВм-{{moshchnost-mvt}} – это водогрейный котел с механической топкой ТЧЗМ, работающий на каменном или буром угле. Котел используется для получения горячей воды и дальнейшего ее использования в системах отопления и горячего водоснабжения. Котел имеет показатель КПД более 80% за счет большой топливной камеры, которая обеспечивает полное сжигание топлива.

Характеристики

Цена, руб.
340000
Вид топки
ТЧЗм
Вид топлива
Бурый уголь, Каменный уголь
Тип
КВм

Устройство и принцип работы

Комплект водогрейного котла КВм-{{moshchnost-mvt}} и механической топки ТЧЗМ собирается в единый корпус по вертикальной схеме – внизу располагается угольная топка, над ней устанавливается блок котла. Корпус изготавливается из металлического жаростойкого листа и обшивается теплоизоляцией.

Совмещение механического и пневматического принципов забрасывания топлива обеспечивают непрерывную подачу новых порций топлива на горящий слой. Топка ТЧЛЗ оснащена чешуйчатым колосниковым полотном, состоящим из ведущих цепей. Чешуйчатая решетка с обратным движением способствует нижнему сжиганию топлива и стабильному горению.

Условное обозначение

Водогрейный котел КВм-{{moshchnost-mvt}} на угле с ТЧЗМ, где:

  • К – котел;
  • В – водогрейный;
  • м – механическая топка;
  • {{moshchnost-mvt}} – мощность котла, МВт;
  • Т – топка;
  • Ч – чешуйчатое полотно;
  • З – забрасыватель;
  • М – механическая.

Особенности и преимущества

  • КПД более 80% обеспечивается за счет большой топливной камеры и системы вентиляции, обеспечивающих полноценное и равномерное сгорание топлива, что помогает рационально использовать и экономить горючее.
  • Низкая температура газов сохраняется за счет развитой конвективной поверхности, что увеличивает срок службы оборудования.
  • Низкие требования к качеству воды избавляют от необходимости подготавливать воду перед использованием.
  • Автоматизация работы котельной за счет механической топки.
  • Механическая подача топлива минимизирует труд рабочих.
  • Минимальные монтажные работы позволят сэкономить время и средства при установке котельного оборудования.

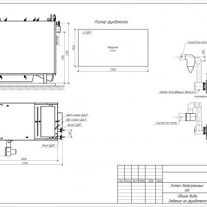
Размещение и установка

Процессом установки котла КВм-{{moshchnost-mvt}} должны заниматься специалисты, чтобы учесть все нюансы при монтаже. Перед установкой поверхность необходимо выровнять и залить фундамент, на который потом установится топка. Котел КВм-{{moshchnost-mvt}} ставят только на пол, поскольку он достаточно тяжелый. Чтобы к вентиляции был хороший доступ кислорода, необходимо все оборудование выставить согласно уровню. После того как все части котла собраны, его необходимо подсоединить к трубопроводу, а также подсоединить все дополнительные датчики и аппаратуру, для того чтобы осуществлять контроль за приборами на котельном оборудовании. В последнюю очередь устанавливают газоотвод, а также недостающие детали системы управления. Когда все собрано необходимо подключиться к водопроводу и запустить котел. Котел работает самостоятельно и не требует присутствия людей.

Эксплуатация и техническое обслуживание

После сборки и монтажа котел КВм-{{moshchnost-mvt}} подключается к водопроводной системе и начинает работу. Котел КВм-{{moshchnost-mvt}} работает автономно и не требует вмешательства человека в процессе своей работы. Помимо простоты использования котел КВм-{{moshchnost-mvt}} имеет еще и длительный срок службы с сохранением высокого показателя КПД на протяжении всего срока.

Важно отметить, что производить ремонтные работы и техническое обслуживание могут только квалифицированные специалисты, имеющие специальное разрешение. При организации технического обслуживания следует учитывать требования «Правил устройства и безопасной эксплуатации паровых и водогрейных котлов».

Комплектация

Котел КВм-{{moshchnost-mvt}} поставляется в виде двух блоков (блок котла и блока ТЧЗМ) с щитком управления. Котел укомплектован всем необходимым для правильной установки: клапанами, запорной арматурой и КИП.

Оглавление
Галерея производства
Бесплатная консультация
по любым вопросам
Или позвоните нам по телефону
8 (800) 200-38-85
Вы смотрели