Устройство и принцип работы
Топка ТЛПХ — топка ленточная прямого хода. Уже из данной расшифровки становится ясно, что здесь используется механическая колосниковая решетка c прямым ходом. Данная конфигурация котла КВм-{{moshchnost-mvt}} выполняется из двух частей: первым блоком является непосредственно котел, вторым служит топка.
Котел КВм-{{moshchnost-mvt}} целиком сварен. В его состав входит трубная система из каркаса, труб и рамы. Компоновка котла сделана в форме буквы «П». В процессе работы котла, горячие газы совершают 2 хода в конвективной части и выводятся наружу через верхнюю часть устройства в задней его стенке. Здесь же вмонтирован люк для очистки от сажи конвективной части котла.
Принцип, по которому работает котел КВм-{{moshchnost-mvt}}, вкратце описывается так. Уголь при помощи транспортера подачи топлива поставляется в бункер топки, где он самостоятельно подается на движущуюся ленту, а затем на решетку. Тут уголь сгорает в слое толщиной примерно 100…200 мм. Толщина корректируется в угольном ящике специальным регулятором слоя. Интенсивность горения угля обеспечивается вентилятором, постоянно подающим необходимый для нормальной работы кислород. Шлак удаляется работающим колосниковым полотном, которое, как уже говорилось ранее, механизировано.
Условное обозначение
Водогрейный котел КВм-{{moshchnost-mvt}} на угле с ТЛПХ, где:
- К – котел;
- В – водогрейный;
- м – механическая топка;
- {{moshchnost-mvt}} – мощность котла, МВт;
- Т – топка;
- Л – ленточная решетка;
- П – прямого;
- Х – хода.
Особенности и преимущества
- КПД более 80% обеспечивается за счет большой топливной камеры и системы вентиляции, обеспечивающих полноценное и равномерное сгорание топлива, что помогает рационально использовать и экономить горючее.
- Низкая температура газов сохраняется за счет развитой конвективной поверхности, что увеличивает срок службы оборудования.
- Низкие требования к качеству воды избавляют от необходимости подготавливать воду перед использованием.
- Автоматизация работы котельной за счет механической топки.
- Минимальные монтажные работы позволят сэкономить время и средства при установке котельного оборудования.
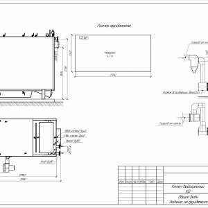
Размещение и установка
Котел КВм-{{moshchnost-mvt}} монтируется непосредственно на фундаментную основу и скрепляется с ней анкерными болтами. Причем установить котел необходимо с соблюдением уровня и обязательно с условием свободного доступу воздуха. После выбора места для устройства и его монтажа, к нему необходимо присоединить топку.
Затем к устройству подводят дополнительные системы, без которых он не сможет работать. Таковой в первую очередь является система водоснабжения. В дальнейшем следует присоединить КИП (контрольно-измерительные приборы), а еще и запорную арматуру.
Теперь необходимо провести полную проверку сборки, все ли части на месте, не осталось ли еще незакрепленных частей. Убедившись, что все на месте, можно сделать тестовый запуск котла КВм-{{moshchnost-mvt}}, который точно покажет — все ли правильно сделано. Если тест прошел успешно, котел готов к применению.
Эксплуатация и техническое обслуживание
После сборки и монтажа котел КВм-{{moshchnost-mvt}} подключается к водопроводной системе и начинает работу. Котел КВм-{{moshchnost-mvt}} работает автономно и не требует вмешательства человека в процессе своей работы. Помимо простоты использования котел КВм-{{moshchnost-mvt}} имеет еще и длительный срок службы с сохранением высокого показателя КПД на протяжении всего срока.
Важно отметить, что производить ремонтные работы и техническое обслуживание могут только квалифицированные специалисты, имеющие специальное разрешение. При организации технического обслуживания следует учитывать требования «Правил устройства и безопасной эксплуатации паровых и водогрейных котлов».
Комплектация
Котел КВм-{{moshchnost-mvt}} поставляется в виде двух блоков (блок котла и блока топки) с щитком управления. Котел укомплектован всем необходимым для правильной установки: клапанами, запорной арматурой и КИП.












