Устройство и принцип работы
Котел КВм-{{moshchnost-mvt}} состоит из механической топки, системы трубопровода и каркаса, покрытого теплоизоляционным материалом. С фронта котла монтируется механическая топка. Из бункера топливо попадает в топку, где и происходит процесс горения. За счет выделившегося тепла происходит нагревание воды в системе трубопровода, которая уже направляется на нужды потребителя. Для поддержания процесса горения на топочное полотно вентилятором подается воздух. Газы, образовавшееся в процессе горения, дважды проходят по конвективной части, а затем выводятся. Котел КВм-{{moshchnost-mvt}} работает с уравновешенной тягой.
Топка ТЛПХ – это бункер для топлива, привод, закрепленный на раме, и движущаяся колосниковая решетка в едином корпусе в заводской сборке. Топливо из бункера попадает на движущуюся колосниковую решетку, скоростью движения решетки формируется постоянная толщина слоя. Под решеткой имеются камеры для подачи воздуха, которые предотвращают спекание горючего и перегрев колосников. Сброс золы и шлака происходит автоматически, за счет поворот решетки, и далее транспортером выводится из системы.
Условное обозначение
Водогрейный котел КВм-{{moshchnost-mvt}} на угле с ТЛПХ, где:
- К – котел;
- В – водогрейный;
- м – механическая топка;
- {{moshchnost-mvt}} – мощность котла, МВт;
- Т – топка;
- Л – ленточная решетка;
- П – прямого;
- Х – хода.
Особенности и преимущества
- КПД более 80% обеспечивается за счет большой топливной камеры и системы вентиляции, обеспечивающих полноценное и равномерное сгорание топлива, что помогает рационально использовать и экономить горючее.
- Низкая температура газов сохраняется за счет развитой конвективной поверхности, что увеличивает срок службы оборудования.
- Низкие требования к качеству воды избавляют от необходимости подготавливать воду перед использованием.
- Автоматизация работы котельной за счет механической топки.
- Минимальные монтажные работы позволят сэкономить время и средства при установке котельного оборудования.
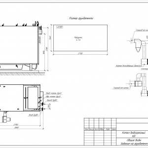
Размещение и установка
Котел КВм-{{moshchnost-mvt}} монтируется непосредственно на фундаментную основу и скрепляется с ней анкерными болтами. Причем установить котел необходимо с соблюдением уровня и обязательно с условием свободного доступу воздуха. После выбора места для устройства и его монтажа, к нему необходимо присоединить топку.
Затем к устройству подводят дополнительные системы, без которых он не сможет работать. Таковой в первую очередь является система водоснабжения. В дальнейшем следует присоединить КИП (контрольно-измерительные приборы), а еще и запорную арматуру.
Теперь необходимо провести полную проверку сборки, все ли части на месте, не осталось ли еще незакрепленных частей. Убедившись, что все на месте, можно сделать тестовый запуск котла КВм-{{moshchnost-mvt}}, который точно покажет — все ли правильно сделано. Если тест прошел успешно, котел готов к применению.
Эксплуатация и техническое обслуживание
После сборки и монтажа котел КВм-{{moshchnost-mvt}} подключается к водопроводной системе и начинает работу. Котел КВм-{{moshchnost-mvt}} работает автономно и не требует вмешательства человека в процессе своей работы. Помимо простоты использования котел КВм-{{moshchnost-mvt}} имеет еще и длительный срок службы с сохранением высокого показателя КПД на протяжении всего срока.
Важно отметить, что производить ремонтные работы и техническое обслуживание могут только квалифицированные специалисты, имеющие специальное разрешение. При организации технического обслуживания следует учитывать требования «Правил устройства и безопасной эксплуатации паровых и водогрейных котлов».
Комплектация
Котел КВм-{{moshchnost-mvt}} поставляется в виде двух блоков (блок котла и блока топки) с щитком управления. Котел укомплектован всем необходимым для правильной установки: клапанами, запорной арматурой и КИП.












