Устройство и принцип работы
Котла КВм-{{moshchnost-mvt}} на угле с топкой ТЧЗМ механическая топка, каркас и трубопровод покрыты изоляционным материалом. С боку монтируют механическую топку. Котел работает на угле, уголь засыпают в бункер, из бункера он попадает в топку, где уголь перегорает. Когда уголь перегорает и становится тепло, вода в системе нагревается и ее можно использовать для собственных нужд. В процессе горения образуется газ, который выводится. Работает котел с уравновешенной тягой.
В топке происходит процесс сжигания угля. Она состоит из двух блоков, в одном блоке стоит чешуйчатая решетка, по которой передвигается топливо, а во втором забрасыватель, который помогает равномерно распределять топливо. Чешуйчатая решетка состоит из цепей с держателями, которые надвинуты друг на друга, образовывая чешую. Сама решетка движется благодаря валикам и мотору.
Забрасыватель в топке пневмомеханический, который помогает равномерно сгорать как крупным частицам, так и мелким в самой топке, благодаря этому уголь сжигается без потерь. Под дном топки, установлены дутьевые камеры, которые подают воздух к топливу, для эффективного сгорания. Такая продувка предотвращает спекание топлива.
Условное обозначение
Водогрейный котел КВм-{{moshchnost-mvt}} на угле с ТЧЗМ, где:
- К – котел;
 - В – водогрейный;
 - м – механическая топка;
 - {{moshchnost-mvt}} – мощность котла, МВт;
 - Т – топка;
 - Ч – чешуйчатое полотно;
 - З – забрасыватель;
 - М – механическая.
 
Особенности и преимущества
- КПД более 80% обеспечивается за счет большой топливной камеры и системы вентиляции, обеспечивающих полноценное и равномерное сгорание топлива, что помогает рационально использовать и экономить горючее.
 - Низкая температура газов сохраняется за счет развитой конвективной поверхности, что увеличивает срок службы оборудования.
 - Низкие требования к качеству воды избавляют от необходимости подготавливать воду перед использованием.
 - Автоматизация работы котельной за счет механической топки.
 - Механическая подача топлива минимизирует труд рабочих.
 - Минимальные монтажные работы позволят сэкономить время и средства при установке котельного оборудования.
 
Размещение и установка
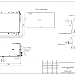
Котел водогрейный КВм-{{moshchnost-mvt}} поставляется в комплекте с механической топкой ТЧЗМ. В готовом виде конструкция имеет вертикальное строение – топка ТЧЗМ устанавливается под водогрейный котел КВм-{{moshchnost-mvt}}, и собирается в общий металлический корпус с теплоизоляцией. Устройство доставляется в максимальной заводской сборке, готовое к монтажу и пуско-наладочным работам. Установка монтируется на подготовленное выравненное основание и надежно фиксируется при помощи анкерных креплений.
Монтаж и пуско-наладочные работы котельного оборудования производятся специалистами с соблюдением СНиП 11-35-76 «Котельные установки» и «Правил устройства и безопасной эксплуатации паровых и водогрейных котлов».
Эксплуатация и техническое обслуживание
После сборки и монтажа котел КВм-{{moshchnost-mvt}} подключается к водопроводной системе и начинает работу. Котел КВм-{{moshchnost-mvt}} работает автономно и не требует вмешательства человека в процессе своей работы. Помимо простоты использования котел КВм-{{moshchnost-mvt}} имеет еще и длительный срок службы с сохранением высокого показателя КПД на протяжении всего срока.
Важно отметить, что производить ремонтные работы и техническое обслуживание могут только квалифицированные специалисты, имеющие специальное разрешение. При организации технического обслуживания следует учитывать требования «Правил устройства и безопасной эксплуатации паровых и водогрейных котлов».
Комплектация
Котел КВм-{{moshchnost-mvt}} поставляется в виде двух блоков (блок котла и блока ТЧЗМ) с щитком управления. Котел укомплектован всем необходимым для правильной установки: клапанами, запорной арматурой и КИП.









