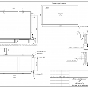
Устройство и принцип работы
Котел КВм-{{moshchnost-mvt}} состоит из механической топки, системы трубопровода и каркаса, покрытого теплоизоляционным материалом. С фронта котла монтируется механическая ТЧЗМ. Из бункера топливо попадает в топку, где и происходит процесс горения. За счет выделившегося тепла происходит нагревание воды в системе трубопровода, которая уже направляется на нужды потребителя. Для поддержания процесса горения на топочное полотно вентилятором подается воздух. Газы, образовавшееся в процессе горения, дважды проходят по конвективной части, а затем выводятся. Котел работает с уравновешенной тягой.
Топка ТЧЗМ – это устройство для сжигания топлива в котлах, представленное двумя блоками: блоком топки с движущейся колосниковой решеткой чешуйчатого типа и блоком забрасывателя для равномерной подачи топлива на решетку.
Чешуйчатое полотно состоит из цепей с держателями для колосников, которые накладываются друг на друга, создавая чешую. Решетка приводится в движение с помощью валиков и мотора.
Под полотном находятся дутьевые камеры, которые обеспечивают подачу воздуха к топливу, способствуя горение. Имеется продувка горящего топлива, что предотвращает спекание горючего и, влияя на степень горения, позволяет сжигать топливо повышенной влажности.
Особенностью топки ТЧЗМ является пневмомеханический забрасыватель, который обеспечивает совокупность двух типов горения топлива: слоевое горение крупного топлива на решетке и воздушное горение мелких частиц топлива непосредственно в топочном пространстве, что обеспечивает полноценное сжигание горючего без потерь из-за несгоревшей пыли.
Условное обозначение
Водогрейный котел КВм-{{moshchnost-mvt}} на угле с ТЧЗМ, где:
- К – котел;
 - В – водогрейный;
 - м – механическая топка;
 - {{moshchnost-mvt}} – мощность котла, МВт;
 - Т – топка;
 - Ч – чешуйчатое полотно;
 - З – забрасыватель;
 - М – механическая.
 
Особенности и преимущества
- КПД более 80% обеспечивается за счет большой топливной камеры и системы вентиляции, обеспечивающих полноценное и равномерное сгорание топлива, что помогает рационально использовать и экономить горючее.
 - Низкая температура газов сохраняется за счет развитой конвективной поверхности, что увеличивает срок службы оборудования.
 - Низкие требования к качеству воды избавляют от необходимости подготавливать воду перед использованием.
 - Автоматизация работы котельной за счет механической топки.
 - Механическая подача топлива минимизирует труд рабочих.
 - Минимальные монтажные работы позволят сэкономить время и средства при установке котельного оборудования.
 
Размещение и установка
Котел водогрейный КВм-{{moshchnost-mvt}} поставляется в комплекте с механической топкой ТЧЗМ. В готовом виде конструкция имеет вертикальное строение – топка ТЧЗМ устанавливается под водогрейный котел КВм-{{moshchnost-mvt}}, и собирается в общий металлический корпус с теплоизоляцией. Устройство доставляется в максимальной заводской сборке, готовое к монтажу и пуско-наладочным работам. Установка монтируется на подготовленное выравненное основание и надежно фиксируется при помощи анкерных креплений.
Монтаж и пуско-наладочные работы котельного оборудования производятся специалистами с соблюдением СНиП 11-35-76 «Котельные установки» и «Правил устройства и безопасной эксплуатации паровых и водогрейных котлов».
Эксплуатация и техническое обслуживание
После сборки и монтажа котел КВм-{{moshchnost-mvt}} подключается к водопроводной системе и начинает работу. Котел КВм-{{moshchnost-mvt}} работает автономно и не требует вмешательства человека в процессе своей работы. Помимо простоты использования котел КВм-{{moshchnost-mvt}} имеет еще и длительный срок службы с сохранением высокого показателя КПД на протяжении всего срока.
Важно отметить, что производить ремонтные работы и техническое обслуживание могут только квалифицированные специалисты, имеющие специальное разрешение. При организации технического обслуживания следует учитывать требования «Правил устройства и безопасной эксплуатации паровых и водогрейных котлов».
Комплектация
Котел КВм-{{moshchnost-mvt}} поставляется в виде двух блоков (блок котла и блока ТЧЗМ) с щитком управления. Котел укомплектован всем необходимым для правильной установки: клапанами, запорной арматурой и КИП.














