В наличии на складе

Котёл КВм-1,9 на угле с топкой ТЛЗМ

945 000

Доставим в

Основные характеристики
Вид топкиТЛЗМ
Вид топливаБурый уголь
ТипКВм
Вид топливаКаменный уголь

Котел КВм-{{moshchnost-mvt}} на угле с топкой ТЛЗМ, работающий на твердом топливе, используется в стационарных котельных для обогрева офисных, жилых и производственных помещений. Топка ТЛЗМ является механической, и уголь загружается в бункер, а оттуда уже механическим способом попадает в топку. Котел имеет систему золошлакоудаления и полностью автономен. Устройство имеет высокий КПД.

Характеристики

Цена, руб.
945000
Вид топки
ТЛЗМ
Вид топлива
Бурый уголь, Каменный уголь
Тип
КВм

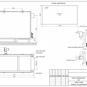
Устройство и принцип работы

Котел КВм-{{moshchnost-mvt}}, оснащенный топкой ТЛЗМ, состоит из:

  • блока топки ТЛЗМ, особенностью которой является наличие ленточной решетки с электроприводом и пневмомеханического надежного забрасывателя. Под решетку подведена воздухоподача, обеспечивающая интенсивное горение;
  • системы трубопроводов, имеющей гладкотрубную структуру;
  • каркаса, исполняющего теплоизоляционную функцию и выполненного из энергетических плит и обшитого стальным листом.

Пневмомеханический забрасыватель устроен таким образом, что механическая его часть отвечает за забрасывание крупного топлива непосредственно на решетку, а пневматика вбрасывает в топку мелкие частички, обеспечивая использование всего угля разного размера.

Конструктивно котел КВм-{{moshchnost-mvt}} сделан так, что образовавшиеся газы проходят через конвектор два раза и полностью отдают тепло, обеспечивая высокоэффективную работу котла, у которого большая конвективная поверхность. Конвекторы расположены внутри котла в шахматном порядке, и это дает высокий КПД работы данного устройства. Образовавшийся шлак выводится автоматически механическим способом.

Условное обозначение

Водогрейный котел КВм-{{moshchnost-mvt}} на угле с ТЛЗМ, где:

  • К – котел;
  • В – водогрейный;
  • м – механическая топка;
  • {{moshchnost-mvt}} – мощность котла, МВт;
  • Т – топка;
  • Л – ленточная топливоподача;
  • З – забрасыватель;
  • М – механическая.

Особенности и преимущества

  • КПД более 80% обеспечивается за счет большой топливной камеры и системы вентиляции, обеспечивающих полноценное и равномерное сгорание топлива, что помогает рационально использовать и экономить горючее.
  • Низкая температура газов сохраняется за счет развитой конвективной поверхности, что увеличивает срок службы оборудования.
  • Низкие требования к качеству воды избавляют от необходимости подготавливать воду перед использованием.
  • Автоматизация работы котельной за счет механической топки.
  • Минимальные монтажные работы позволят сэкономить время и средства при установке котельного оборудования.

Размещение и установка

Котел КВм-{{moshchnost-mvt}} должен быть установлен специалистами. Котел имеет значительный вес, поэтому устанавливается только на пол, на специально подготовленную поверхность. Котел КВм-{{moshchnost-mvt}} устанавливается на подготовленный фундамент, к нему монтируется топка. Важно обеспечить доступ кислорода к вентиляционной системе и установить оборудование ровно, используя уровень. Далее собранный котел присоединяется к трубопроводу, устанавливаются запорные устройства, все необходимая арматура и контрольно-измерительные приборы. В конце производится монтаж газовыводящей системы и установка элементов управления.

Эксплуатация и техническое обслуживание

После сборки и монтажа котел КВм-{{moshchnost-mvt}} подключается к водопроводной системе и начинает работу. Котел КВм-{{moshchnost-mvt}} работает автономно и не требует вмешательства человека в процессе своей работы. Помимо простоты использования котел КВм-{{moshchnost-mvt}} имеет еще и длительный срок службы с сохранением высокого показателя КПД на протяжении всего срока.

Важно отметить, что производить ремонтные работы и техническое обслуживание могут только квалифицированные специалисты, имеющие специальное разрешение. При организации технического обслуживания следует учитывать требования «Правил устройства и безопасной эксплуатации паровых и водогрейных котлов».

Комплектация

Котел КВм-{{moshchnost-mvt}} поставляется в виде двух блоков (блок котла и блока топки) с щитком управления. Котел укомплектован всем необходимым для правильной установки: клапанами, запорной арматурой и КИП.

Оглавление
Галерея производства
Бесплатная консультация
по любым вопросам
Или позвоните нам по телефону
8 (800) 200-38-85
Вы смотрели