Устройство и принцип работы
Котел КВм-1 на угле с питателем ПТЛ состоит из механической топки, системы трубопровода и каркаса, покрытого теплоизоляционным материалом. С фронта котла монтируется ПТЛ. Из бункера транспортером топливо попадает в топку, где и происходит процесс горения. За счет выделившегося тепла происходит нагревание воды в системе трубопровода, которая уже направляется на нужды потребителя. Для поддержания процесса горения на топочное полотно вентилятором подается воздух. Газы, образовавшееся в процессе горения, дважды проходят по конвективной части, а затем выводятся. Котел работает с уравновешенной тягой.
ПТЛ — это ленточный питатель топлива.
ПТЛ состоит из топливного бункера, транспортера и забрасывателя. Формирование подаваемого слоя регулируется заслонкой внутри бункера. Скорость транспортера регулируется Забрасывание топлива происходит путем вращения лопастей забрасывателя. Движение забрасывающего механизма обеспечивается работой электродвигателя.
Дополнительно ПТЛ обеспечивает подачу мелких частиц топлива. Эту функцию выполняет коллектор для дополнительного дутья, который потоком воздуха направляет пыль в топку.
Особенности и преимущества
- КПД более 80% обеспечивается за счет большой топливной камеры и системы вентиляции, обеспечивающих полноценное и равномерное сгорание топлива, что помогает рационально использовать и экономить горючее.
 - Низкая температура газов сохраняется за счет развитой конвективной поверхности, что увеличивает срок службы оборудования.
 - Низкие требования к качеству воды избавляют от необходимости подготавливать воду перед использованием.
 - Автоматизация работы котельной за счет механической топки.
 - Механическая подача топлива минимизирует труд рабочих.
 - Минимальные монтажные работы позволят сэкономить время и средства при установке котельного оборудования.
 
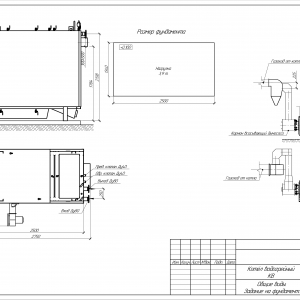
Размещение и установка
Котел КВм-1 на угле с питателем ПТЛ должен быть установлен специалистами. Котел имеет значительный вес, поэтому устанавливается только на пол, на специально подготовленную поверхность. Котел устанавливается на подготовленный фундамент, к нему монтируется топка. Важно обеспечить доступ кислорода к вентиляционной системе и установить оборудование ровно, используя уровень. Далее собранный котел присоединяется к трубопроводу, устанавливаются запорные устройства, все необходимая арматура и контрольно-измерительные приборы. В конце производится монтаж газовыводящей системы и установка элементов управления.
Эксплуатация и техническое обслуживание
После сборки и монтажа котел подключается к водопроводной системе и начинает работу. Котел КВм-1 на угле с питателем ПТЛ работает автономно и не требует вмешательства человека в процессе своей работы. Помимо простоты использования котел КВм-1 имеет еще и длительный срок службы с сохранением высокого показателя КПД на протяжении всего срока.
Важно отметить, что производить ремонтные работы и техническое обслуживание могут только квалифицированные специалисты, имеющие специальное разрешение. При организации технического обслуживания следует учитывать требования «Правил устройства и безопасной эксплуатации паровых и водогрейных котлов».
Комплектация
Котел КВм-1 на угле с питателем ПТЛ поставляется в виде двух блоков (блок котла и блока ПТЛ) с щитком управления. Котел укомплектован всем необходимым для правильной установки: клапанами, запорной арматурой и КИП.










