Устройство и принцип работы
Комплект водогрейного котла КВм-1 и механической топки ТЧЗМ собирается в единый корпус по вертикальной схеме – внизу располагается угольная топка, над ней устанавливается блок котла. Корпус изготавливается из металлического жаростойкого листа и обшивается теплоизоляцией.
Совмещение механического и пневматического принципов забрасывания топлива обеспечивают непрерывную подачу новых порций топлива на горящий слой. Топка ТЧЛЗ оснащена чешуйчатым колосниковым полотном, состоящим из ведущих цепей. Чешуйчатая решетка с обратным движением способствует нижнему сжиганию топлива и стабильному горению.
Условное обозначение
Водогрейный котел КВм-1 на угле с ТЧЗМ, где:
- К – котел;
- В – водогрейный;
- м – механическая топка;
- 1 – мощность котла, МВт;
- Т – топка;
- Ч – чешуйчатое полотно;
- З – забрасыватель;
- М – механическая.
Особенности и преимущества
- КПД более 80% обеспечивается за счет большой топливной камеры и системы вентиляции, обеспечивающих полноценное и равномерное сгорание топлива, что помогает рационально использовать и экономить горючее.
- Низкая температура газов сохраняется за счет развитой конвективной поверхности, что увеличивает срок службы оборудования.
- Низкие требования к качеству воды избавляют от необходимости подготавливать воду перед использованием.
- Автоматизация работы котельной за счет механической топки.
- Механическая подача топлива минимизирует труд рабочих.
- Минимальные монтажные работы позволят сэкономить время и средства при установке котельного оборудования.
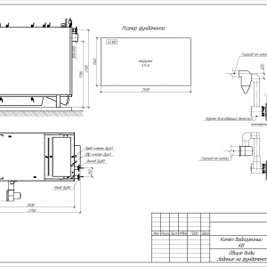
Размещение и установка
Котел КВм-1 должен быть установлен специалистами. Котел имеет значительный вес, поэтому устанавливается только на пол, на специально подготовленную поверхность. Котел устанавливается на подготовленный фундамент, к нему монтируется топка. Важно обеспечить доступ кислорода к вентиляционной системе и установить оборудование ровно, используя уровень. Далее собранный котел присоединяется к трубопроводу, устанавливаются запорные устройства, все необходимая арматура и контрольно-измерительные приборы. В конце производится монтаж газовыводящей системы и установка элементов управления.
Эксплуатация и техническое обслуживание
После сборки и монтажа котел КВм-1 подключается к водопроводной системе и начинает работу. Котел КВм-1 работает автономно и не требует вмешательства человека в процессе своей работы. Помимо простоты использования котел КВм-1 имеет еще и длительный срок службы с сохранением высокого показателя КПД на протяжении всего срока.
Важно отметить, что производить ремонтные работы и техническое обслуживание могут только квалифицированные специалисты, имеющие специальное разрешение. При организации технического обслуживания следует учитывать требования «Правил устройства и безопасной эксплуатации паровых и водогрейных котлов».
Комплектация
Котел КВм-1 поставляется в виде двух блоков (блок котла и блока ТЧЗМ) с щитком управления. Котел укомплектован всем необходимым для правильной установки: клапанами, запорной арматурой и КИП.










