Устройство и принцип работы
Котел КВм-1, оснащенный топкой ТЛЗМ, состоит из:
- блока топки ТЛЗМ, особенностью которой является наличие ленточной решетки с электроприводом и пневмомеханического надежного забрасывателя. Под решетку подведена воздухоподача, обеспечивающая интенсивное горение;
 - системы трубопроводов, имеющей гладкотрубную структуру;
 - каркаса, исполняющего теплоизоляционную функцию и выполненного из энергетических плит и обшитого стальным листом.
 
Пневмомеханический забрасыватель устроен таким образом, что механическая его часть отвечает за забрасывание крупного топлива непосредственно на решетку, а пневматика вбрасывает в топку мелкие частички, обеспечивая использование всего угля разного размера.
Конструктивно котел КВм-1 сделан так, что образовавшиеся газы проходят через конвектор два раза и полностью отдают тепло, обеспечивая высокоэффективную работу котла, у которого большая конвективная поверхность. Конвекторы расположены внутри котла в шахматном порядке, и это дает высокий КПД работы данного устройства. Образовавшийся шлак выводится автоматически механическим способом.
Условное обозначение
Водогрейный котел КВм-1 на угле с ТЛЗМ, где:
- К – котел;
 - В – водогрейный;
 - м – механическая топка;
 - 1 – мощность котла, МВт;
 - Т – топка;
 - Л – ленточная топливоподача;
 - З – забрасыватель;
 - М – механическая.
 
Особенности и преимущества
- КПД более 80% обеспечивается за счет большой топливной камеры и системы вентиляции, обеспечивающих полноценное и равномерное сгорание топлива, что помогает рационально использовать и экономить горючее.
 - Низкая температура газов сохраняется за счет развитой конвективной поверхности, что увеличивает срок службы оборудования.
 - Низкие требования к качеству воды избавляют от необходимости подготавливать воду перед использованием.
 - Автоматизация работы котельной за счет механической топки.
 - Минимальные монтажные работы позволят сэкономить время и средства при установке котельного оборудования.
 
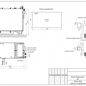
Размещение и установка
Котел КВм-1 должен быть установлен специалистами. Котел имеет значительный вес, поэтому устанавливается только на пол, на специально подготовленную поверхность. Котел КВм-1 устанавливается на подготовленный фундамент, к нему монтируется топка. Важно обеспечить доступ кислорода к вентиляционной системе и установить оборудование ровно, используя уровень. Далее собранный котел присоединяется к трубопроводу, устанавливаются запорные устройства, все необходимая арматура и контрольно-измерительные приборы. В конце производится монтаж газовыводящей системы и установка элементов управления.
Эксплуатация и техническое обслуживание
После сборки и монтажа котел КВм-1 подключается к водопроводной системе и начинает работу. Котел КВм-1 работает автономно и не требует вмешательства человека в процессе своей работы. Помимо простоты использования котел КВм-1 имеет еще и длительный срок службы с сохранением высокого показателя КПД на протяжении всего срока.
Важно отметить, что производить ремонтные работы и техническое обслуживание могут только квалифицированные специалисты, имеющие специальное разрешение. При организации технического обслуживания следует учитывать требования «Правил устройства и безопасной эксплуатации паровых и водогрейных котлов».
Комплектация
Котел КВм-1 поставляется в виде двух блоков (блок котла и блока топки) с щитком управления. Котел укомплектован всем необходимым для правильной установки: клапанами, запорной арматурой и КИП.










