В наличии на складе

Котёл КВм-2,05 на угле с топкой ЗП-РПК

570 000

Доставим в

Основные характеристики
Вид топкиЗП-РПК
Вид топливаБурый уголь
ТипКВм
Вид топливаКаменный уголь

Котел КВм-{{moshchnost-mvt}} на угле с топкой ЗП-РПК – водогрейный агрегат с механической системой топливоподачи и шлакоудаления. Используется для получения горячей воды температурой до 115 °С, с последующим использованием нагретой жидкости в системах отопления и горячего водоснабжения объектов промышленности, жилых домой, складов, общественных и административных помещений. Работает с механической топкой ЗП-РПК на буром или каменном угле.

Характеристики

Цена, руб.
570000
Вид топки
ЗП-РПК
Вид топлива
Бурый уголь, Каменный уголь
Тип
КВм

Устройство и принцип работы

Котел КВм-{{moshchnost-mvt}} состоит из механической топки, системы трубопровода и каркаса, покрытого теплоизоляционным материалом. С фронта котла монтируется механическая топка. Из бункера топливо попадает в топку, где и происходит процесс горения. За счет выделившегося тепла происходит нагревание воды в системе трубопровода, которая уже направляется на нужды потребителя. Для поддержания процесса горения на топочное полотно вентилятором подается воздух. Газы, образовавшееся в процессе горения, дважды проходят по конвективной части, а затем выводятся. Котел КВм-{{moshchnost-mvt}} работает с уравновешенной тягой.

Топка ЗП-РПК – это устройство для сжигания топлива в котлах, представленное двумя блоками: блоком топки с поворотной колосниковой решеткой и блоком забрасывателя для равномерной подачи топлива на решетку.

Колосниковая решетка выполнена из чугуна и имеет ручной привод для поворота колосников, с помощью которого сбрасывается шлак и зола. Решетка топки делится на одну или две секции, в зависимости от размера топки. На каждую секцию имеется свой ручной привод для поворота колосников. Под решеткой размещен шлаковый бункер, куда сбрасываются отходы горения.

Особенностью топки ЗП-РПК является пневмомеханический забрасыватель типа ЗП, обеспечивающий совокупность двух типов подачи топлива: подача крупного топлива на решетку слоями и подача мелких частиц топлива потоком воздуха непосредственно в топочное пространство, что обеспечивает полноценное сжигание горючего без потерь из-за несгоревшей пыли.

Условное обозначение

Водогрейный котел КВм-{{moshchnost-mvt}} на угле с ЗП-РПК, где:

  • К – котел;
  • В – водогрейный;
  • м – механическая топка;
  • {{moshchnost-mvt}} – мощность котла, МВт;
  • З – забрасыватель;
  • П – пневмомеханический;
  • Р – решетка;
  • П – поворотная;
  • К – колосниковая.

Особенности и преимущества

  • КПД более 80% обеспечивается за счет большой топливной камеры и системы вентиляции, обеспечивающих полноценное и равномерное сгорание топлива, что помогает рационально использовать и экономить горючее.
  • Низкая температура газов сохраняется за счет развитой конвективной поверхности, что увеличивает срок службы оборудования.
  • Низкие требования к качеству воды избавляют от необходимости подготавливать воду перед использованием.
  • Автоматизация работы котельной за счет механической топки.
  • Минимальные монтажные работы позволят сэкономить время и средства при установке котельного оборудования.

Размещение и установка

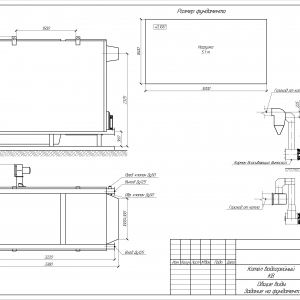
Котел КВм-{{moshchnost-mvt}} на угле с топкой ЗП-РПК поставляется в удобном двублочном исполнении в полной заводской сборке, и легко стыкуются при монтаже. Устанавливается на предварительно выровненную поверхность без необходимости в строительстве специального фундамента. Крепится к поверхности при помощи анкерных болтов.

Монтаж котельного оборудования производится с соблюдением СНиП 11-35-76 «Котельные установки» и «Правил устройства и безопасной эксплуатации паровых и водогрейных котлов». Установка и пуско-наладочные работы выполняют специалисты, которые имеют разрешение на проведение данных работ.

Эксплуатация и техническое обслуживание

После сборки и монтажа котел подключается к водопроводной системе и начинает работу. Котел КВм-{{moshchnost-mvt}} работает автономно и не требует вмешательства человека в процессе своей работы. Помимо простоты использования котел КВм-{{moshchnost-mvt}} имеет еще и длительный срок службы с сохранением высокого показателя КПД на протяжении всего срока.

Важно отметить, что производить ремонтные работы и техническое обслуживание могут только квалифицированные специалисты, имеющие специальное разрешение. При организации технического обслуживания следует учитывать требования «Правил устройства и безопасной эксплуатации паровых и водогрейных котлов».

Комплектация

Котел КВм-{{moshchnost-mvt}} поставляется в виде двух блоков (блок котла и блока топки) с щитком управления. Котел укомплектован всем необходимым для правильной установки: клапанами, запорной арматурой и КИП.

Оглавление
Галерея производства
Бесплатная консультация
по любым вопросам
Или позвоните нам по телефону
8 (800) 200-38-85
Вы смотрели