Устройство и принцип работы
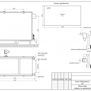
Котел водогрейный КВм-{{moshchnost-mvt}} на угле с топкой ТЛПХ – это два блока (котел и топка), собранный по вертикальному принципу, где топка располагается под котельной установкой. На заводе-изготовителе оба блока собираются в единый металлический корпус, обшиваются теплоизоляционным материалом, и приходят заказчику уже в готовом двублочном виде.
Устройство механической топки ТЛПХ состоит из топливного бункера, рамы с электроприводом, переднего и заднего валов, колосникового ленточного полотна из крайних, ведущих и ведомых чугунных колосников. Движение решетке задает электропривод топки, который состоит из рамы, двигателя и редуктора.
Работа топки начинается с топливоподачи, которая забрасывает топливо в ящик хранения. Из него порционно топливо попадает на колосниковую решетку. Порция топлива дозируется за счет регулировки скорости колосникового полотна. Для стимуляции горения и полноценного расхода топлива в слое предусмотрена тягодутьевая система. Она же частично помогает избавиться от отходов горения сбрасываю шлак и золу в камеру отходов, расположенную под колосниковой решеткой.
Условное обозначение
Водогрейный котел КВм-{{moshchnost-mvt}} на угле с ТЛПХ, где:
- К – котел;
- В – водогрейный;
- м – механическая топка;
- {{moshchnost-mvt}} – мощность котла, МВт;
- Т – топка;
- Л – ленточная решетка;
- П – прямого;
- Х – хода.
Особенности и преимущества
- КПД более 80% обеспечивается за счет большой топливной камеры и системы вентиляции, обеспечивающих полноценное и равномерное сгорание топлива, что помогает рационально использовать и экономить горючее.
- Низкая температура газов сохраняется за счет развитой конвективной поверхности, что увеличивает срок службы оборудования.
- Низкие требования к качеству воды избавляют от необходимости подготавливать воду перед использованием.
- Автоматизация работы котельной за счет механической топки.
- Минимальные монтажные работы позволят сэкономить время и средства при установке котельного оборудования.
Размещение и установка
Котел водогрейный КВм-{{moshchnost-mvt}} поставляется в комплекте с механической топкой ТЛПХ. В готовом виде конструкция имеет вертикальное строение – топка ТЛПХ устанавливается под водогрейный котел КВм, и собирается в общий металлический корпус с теплоизоляцией. Устройство доставляется в максимальной заводской сборке, готовое к монтажу и пуско-наладочным работам. Установка монтируется на подготовленное выравненное основание и надежно фиксируется при помощи анкерных креплений.
Монтаж и пуско-наладочные работы котельного оборудования производятся специалистами с соблюдением СНиП 11-35-76 «Котельные установки» и «Правил устройства и безопасной эксплуатации паровых и водогрейных котлов».
Эксплуатация и техническое обслуживание
После сборки и монтажа котел КВм-{{moshchnost-mvt}} подключается к водопроводной системе и начинает работу. Котел КВм-{{moshchnost-mvt}} работает автономно и не требует вмешательства человека в процессе своей работы. Помимо простоты использования котел КВм-{{moshchnost-mvt}} имеет еще и длительный срок службы с сохранением высокого показателя КПД на протяжении всего срока.
Важно отметить, что производить ремонтные работы и техническое обслуживание могут только квалифицированные специалисты, имеющие специальное разрешение. При организации технического обслуживания следует учитывать требования «Правил устройства и безопасной эксплуатации паровых и водогрейных котлов».
Комплектация
Котел КВм-{{moshchnost-mvt}} поставляется в виде двух блоков (блок котла и блока топки) с щитком управления. Котел укомплектован всем необходимым для правильной установки: клапанами, запорной арматурой и КИП.














