Устройство и принцип работы
Котел КВм-2.5, оснащенный топкой ТЛЗМ, состоит из:
- блока топки ТЛЗМ, особенностью которой является наличие ленточной решетки с электроприводом и пневмомеханического надежного забрасывателя. Под решетку подведена воздухоподача, обеспечивающая интенсивное горение;
- системы трубопроводов, имеющей гладкотрубную структуру;
- каркаса, исполняющего теплоизоляционную функцию и выполненного из энергетических плит и обшитого стальным листом.
Пневмомеханический забрасыватель устроен таким образом, что механическая его часть отвечает за забрасывание крупного топлива непосредственно на решетку, а пневматика вбрасывает в топку мелкие частички, обеспечивая использование всего угля разного размера.
Конструктивно котел КВм-2.5 сделан так, что образовавшиеся газы проходят через конвектор два раза и полностью отдают тепло, обеспечивая высокоэффективную работу котла, у которого большая конвективная поверхность. Конвекторы расположены внутри котла в шахматном порядке, и это дает высокий КПД работы данного устройства. Образовавшийся шлак выводится автоматически механическим способом.
Условное обозначение
Водогрейный котел КВм-2.5 на угле с ТЛЗМ, где:
- К – котел;
- В – водогрейный;
- м – механическая топка;
- 2.5 – мощность котла, МВт;
- Т – топка;
- Л – ленточная топливоподача;
- З – забрасыватель;
- М – механическая.
Особенности и преимущества
- КПД более 80% обеспечивается за счет большой топливной камеры и системы вентиляции, обеспечивающих полноценное и равномерное сгорание топлива, что помогает рационально использовать и экономить горючее.
- Низкая температура газов сохраняется за счет развитой конвективной поверхности, что увеличивает срок службы оборудования.
- Низкие требования к качеству воды избавляют от необходимости подготавливать воду перед использованием.
- Автоматизация работы котельной за счет механической топки.
- Минимальные монтажные работы позволят сэкономить время и средства при установке котельного оборудования.
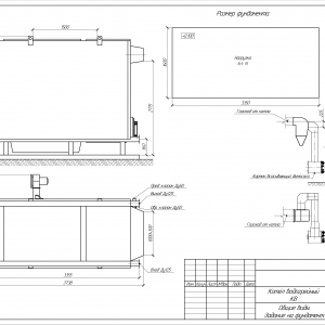
Размещение и установка
Котел водогрейный КВм-2.5 поставляется в комплекте с механической топкой ТЛЗМ. В готовом виде конструкция имеет вертикальное строение – топка ТЛЗМ устанавливается под водогрейный котел КВм-2.5, и собирается в общий металлический корпус с теплоизоляцией. Устройство доставляется в максимальной заводской сборке, готовое к монтажу и пуско-наладочным работам. Установка монтируется на подготовленное выравненное основание и надежно фиксируется при помощи анкерных креплений.
Монтаж и пуско-наладочные работы котельного оборудования производятся специалистами с соблюдением СНиП 11-35-76 «Котельные установки» и «Правил устройства и безопасной эксплуатации паровых и водогрейных котлов».
Эксплуатация и техническое обслуживание
После сборки и монтажа котел КВм-2.5 подключается к водопроводной системе и начинает работу. Котел КВм-2.5 работает автономно и не требует вмешательства человека в процессе своей работы. Помимо простоты использования котел КВм-2.5 имеет еще и длительный срок службы с сохранением высокого показателя КПД на протяжении всего срока.
Важно отметить, что производить ремонтные работы и техническое обслуживание могут только квалифицированные специалисты, имеющие специальное разрешение. При организации технического обслуживания следует учитывать требования «Правил устройства и безопасной эксплуатации паровых и водогрейных котлов».
Комплектация
Котел КВм-2.5 поставляется в виде двух блоков (блок котла и блока топки) с щитком управления. Котел укомплектован всем необходимым для правильной установки: клапанами, запорной арматурой и КИП.














