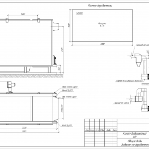
Устройство и принцип работы
Котел КВм-2 – это водогрейных механический котел, состоящий из блока топки, системы трубопроводы и теплоизоляционного каркаса. Топливо загружается в бункер, откуда механическим путем попадает в топку. Начинается процесс горения, в результате которого нагревается энергоноситель в трубопроводной системе. Нагретая вода может использоваться потребителями для обеспечения нужд отопления и горячего водоснабжения.
Газы, образовавшиеся в процессе горения, дважды проходят через конвективную часть, полностью отдают тепло и выводятся. Зола, образовавшийся в результате горения, выводится из системы механическим способом.
Условное обозначение
Водогрейный котел КВм-2 на древесных отходах, где:
- К – котел;
 - В – водогрейный;
 - м – механическая топка;
 - 2 – мощность котла.
 
Особенности и преимущества
- КПД более 80% обеспечивается за счет большой топливной камеры и системы вентиляции, обеспечивающих полноценное и равномерное сгорание топлива, что помогает рационально использовать и экономить горючее;
 - Низкая температура газов сохраняется за счет развитой конвективной поверхности, что увеличивает срок службы оборудования;
 - Устойчивости к накипеобразованию способствует гидравлическая схема, предотвращающая застои и появление накипи, образование которой снизило бы КПД при длительном использовании котла;
 - Низкие требования к качеству воды избавляют от необходимости подготавливать воду перед использованием;
 - Механизация процесса минимизирует участие человека и облегчает труд рабочих;
 - Минимальные монтажные работы позволят сэкономить время и средства при установке котельного оборудования.
 
Размещение и установка
Монтаж оборудования производится специалистом в соответствии техникой безопасности. Монтируется котел КВм-2 к бетонному фундаменту крепежными анкерами.
Важно! При монтаже котла нужно использовать уровень, очень важно установить оборудование ровно и организовать доступ воздуха к системам. Перед запуском оборудования в работу, следует проверить циркуляцию воды, наличие напряжения.
Эксплуатация и техническое обслуживание
За счет механической топки и системы золоотведения, котел КВм-2 работает автономно. Все ремонтные работы, включая технические осмотры, должны проводиться квалифицированными специалистами, которые имеют специальное разрешение. При организации технического обслуживания следует учитывать требования «Правил устройства и безопасной эксплуатации паровых и водогрейных котлов».
Комплектация
Котел КВм-2 доставляется отдельными блоками, которые требуют сборки. При заказе котел комплектуется всем необходимым, чтобы правильно установить прибор: запорной арматурой, контрольно-измерительными приборами, частями вентиляционной системы, а также – дымососом и золоуловителем, если есть необходимость очистки дымовых газов.
















