Устройство и принцип работы
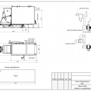
Котел КВм-2 состоит из механической топки, системы трубопровода и каркаса, покрытого теплоизоляционным материалом. С фронта котла монтируется механическая топка. Из бункера топливо попадает в топку, где и происходит процесс горения. За счет выделившегося тепла происходит нагревание воды в системе трубопровода, которая уже направляется на нужды потребителя. Для поддержания процесса горения на топочное полотно вентилятором подается воздух. Газы, образовавшееся в процессе горения, дважды проходят по конвективной части, а затем выводятся. Котел работает с уравновешенной тягой.
Топка ТШПм – это бункер для топлива, неподвижная колосниковая решетка, шурующая планка и вентилятор в едином корпусе в заводской сборке. Топливо из топливного бункера шурующей планкой подается на решетку, распределяется, и начинается горение. Горение поддерживается работой вентилятора. Решетка и шурующая планка в процессе работы охлаждаются системой трубопровода.
Особенностью топки ТШПм является шурующая планка, которая с заданным промежутком совершает движение по колосниковой решетке. С ее помощью осуществляется перемещение топлива по решетке, подача горячего топлива, равномерное распределение углей, ворошение топлива для обеспечения доступа кислорода ко всем слоям и сброс золы и шлака с решетки. В совокупности эти действия способствуют полному выгоранию топлива, а, следовательно, высокой производительности котла и экономичному использованию горючего.
Условное обозначение
Водогрейный котел КВм-2 на угле с ТШПм, где:
- К – котел;
 - В – водогрейный;
 - м – механическая топка;
 - 2 – мощность котла, МВт;
 - Т – топка;
 - Ш – шурующая;
 - П – планка;
 - М – механическая.
 
Особенности и преимущества
- КПД более 80% обеспечивается за счет большой топливной камеры и системы вентиляции, обеспечивающих полноценное и равномерное сгорание топлива, что помогает рационально использовать и экономить горючее.
 - Низкая температура газов сохраняется за счет развитой конвективной поверхности, что увеличивает срок службы оборудования.
 - Низкие требования к качеству воды избавляют от необходимости подготавливать воду перед использованием.
 - Автоматизация работы котельной за счет механической топки.
 - Минимальные монтажные работы позволят сэкономить время и средства при установке котельного оборудования.
 
Размещение и установка
Котел водогрейный КВм-2 поставляется в комплекте с механической топкой ТШПМ. В готовом виде конструкция имеет вертикальное строение – топка ТШПМ устанавливается под водогрейный котел КВм, и собирается в общий металлический корпус с теплоизоляцией. Устройство доставляется в максимальной заводской сборке, готовое к монтажу и пуско-наладочным работам. Установка монтируется на подготовленное выравненное основание и надежно фиксируется при помощи анкерных креплений.
Монтаж и пуско-наладочные работы котельного оборудования производятся специалистами с соблюдением СНиП 11-35-76 «Котельные установки» и «Правил устройства и безопасной эксплуатации паровых и водогрейных котлов».
Эксплуатация и техническое обслуживание
После сборки и монтажа котелКВм-2 подключается к водопроводной системе и начинает работу. Котел КВм-2 работает автономно и не требует вмешательства человека в процессе своей работы. Помимо простоты использования котел КВм-2 имеет еще и длительный срок службы с сохранением высокого показателя КПД на протяжении всего срока.
Важно отметить, что производить ремонтные работы и техническое обслуживание могут только квалифицированные специалисты, имеющие специальное разрешение. При организации технического обслуживания следует учитывать требования «Правил устройства и безопасной эксплуатации паровых и водогрейных котлов».
Комплектация
Котел КВм-2 поставляется в виде двух блоков (блок котла и блока топки) с щитком управления. Котел укомплектован всем необходимым для правильной установки: клапанами, запорной арматурой и КИП.














