В наличии на складе

Котёл КВм-3,05 на угле с топкой ТЛЗМ

697 000

Доставим в

Основные характеристики
Вид топкиТЛЗМ
Вид топливаБурый уголь
ТипКВм
Вид топливаКаменный уголь

Котел КВм-{{moshchnost-mvt}} на угле с топкой ТЛЗМ, работающий на твердом топливе, используется в стационарных котельных для обогрева офисных, жилых и производственных помещений. Топка ТЛЗМ является механической, и уголь загружается в бункер, а оттуда уже механическим способом попадает в топку. Котел имеет систему золошлакоудаления и полностью автономен. Устройство имеет высокий КПД.

Характеристики

Цена, руб.
697000
Вид топки
ТЛЗМ
Вид топлива
Бурый уголь, Каменный уголь
Тип
КВм

Устройство и принцип работы

Котел КВм-{{moshchnost-mvt}} состоит из механической топки, системы трубопровода и каркаса, покрытого теплоизоляционным материалом. С фронта котла монтируется механическая топка. Из бункера топливо попадает в топку, где и происходит процесс горения. За счет выделившегося тепла происходит нагревание воды в системе трубопровода, которая уже направляется на нужды потребителя. Для поддержания процесса горения на топочное полотно вентилятором подается воздух. Газы, образовавшееся в процессе горения, дважды проходят по конвективной части, а затем выводятся. Котел КВм-{{moshchnost-mvt}} работает с уравновешенной тягой.

Топка ТЛЗМ – это устройство для сжигания топлива в котлах, представленное двумя блоками: блоком топки с движущейся колосниковой решеткой ленточного типа и блоком забрасывателя для равномерной подачи топлива на решетку.

Колосниковая решетка собирается из различных колосников, которые соединены штырями. Скоростью движения решетки определяется тепловая нагрузка. Помимо этого, степень горения регулируется подачей воздуха под колосниковую решетку через воздушные коробы.

Особенностью топки ТЛЗМ является пневмомеханический забрасыватель, обеспечивающий совокупность двух типов подачи топлива: подача крупного топлива на решетку слоями и подача мелких частиц топлива потоком воздуха непосредственно в топочное пространство, что обеспечивает полноценное сжигание горючего без потерь из-за несгоревшей пыли.

Условное обозначение

Водогрейный котел КВм-{{moshchnost-mvt}} на угле с ТЛЗМ, где:

  • К – котел;
  • В – водогрейный;
  • м – механическая топка;
  • {{moshchnost-mvt}} – мощность котла, МВт;
  • Т – топка;
  • Л – ленточная топливоподача;
  • З – забрасыватель;
  • М – механическая.

Особенности и преимущества

  • КПД более 80% обеспечивается за счет большой топливной камеры и системы вентиляции, обеспечивающих полноценное и равномерное сгорание топлива, что помогает рационально использовать и экономить горючее.
  • Низкая температура газов сохраняется за счет развитой конвективной поверхности, что увеличивает срок службы оборудования.
  • Низкие требования к качеству воды избавляют от необходимости подготавливать воду перед использованием.
  • Автоматизация работы котельной за счет механической топки.
  • Минимальные монтажные работы позволят сэкономить время и средства при установке котельного оборудования.

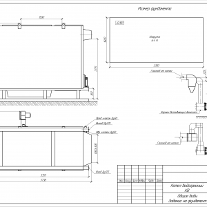
Размещение и установка

Котел КВм-{{moshchnost-mvt}} должен быть установлен специалистами. Котел имеет значительный вес, поэтому устанавливается только на пол, на специально подготовленную поверхность. Котел КВм-{{moshchnost-mvt}} устанавливается на подготовленный фундамент, к нему монтируется топка. Важно обеспечить доступ кислорода к вентиляционной системе и установить оборудование ровно, используя уровень. Далее собранный котел присоединяется к трубопроводу, устанавливаются запорные устройства, все необходимая арматура и контрольно-измерительные приборы. В конце производится монтаж газовыводящей системы и установка элементов управления.

Эксплуатация и техническое обслуживание

После сборки и монтажа котел КВм-{{moshchnost-mvt}} подключается к водопроводной системе и начинает работу. Котел КВм-{{moshchnost-mvt}} работает автономно и не требует вмешательства человека в процессе своей работы. Помимо простоты использования котел КВм-{{moshchnost-mvt}} имеет еще и длительный срок службы с сохранением высокого показателя КПД на протяжении всего срока.

Важно отметить, что производить ремонтные работы и техническое обслуживание могут только квалифицированные специалисты, имеющие специальное разрешение. При организации технического обслуживания следует учитывать требования «Правил устройства и безопасной эксплуатации паровых и водогрейных котлов».

Комплектация

Котел КВм-{{moshchnost-mvt}} поставляется в виде двух блоков (блок котла и блока топки) с щитком управления. Котел укомплектован всем необходимым для правильной установки: клапанами, запорной арматурой и КИП.

Оглавление
Галерея производства
Бесплатная консультация
по любым вопросам
Или позвоните нам по телефону
8 (800) 200-38-85
Вы смотрели