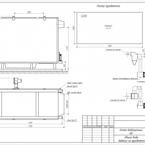
Устройство и принцип работы
Котел КВм-{{moshchnost-mvt}} состоит из механической топки, системы трубопровода и каркаса, покрытого теплоизоляционным материалом. С фронта котла монтируется механическая топка. Из бункера топливо попадает в топку, где и происходит процесс горения. За счет выделившегося тепла происходит нагревание воды в системе трубопровода, которая уже направляется на нужды потребителя. Для поддержания процесса горения на топочное полотно вентилятором подается воздух. Газы, образовавшееся в процессе горения, дважды проходят по конвективной части, а затем выводятся. Котел КВм-{{moshchnost-mvt}} работает с уравновешенной тягой.
Топка ЗП-РПК – это устройство для сжигания топлива в котлах, представленное двумя блоками: блоком топки с поворотной колосниковой решеткой и блоком забрасывателя для равномерной подачи топлива на решетку.
Колосниковая решетка выполнена из чугуна и имеет ручной привод для поворота колосников, с помощью которого сбрасывается шлак и зола. Решетка топки делится на одну или две секции, в зависимости от размера топки. На каждую секцию имеется свой ручной привод для поворота колосников. Под решеткой размещен шлаковый бункер, куда сбрасываются отходы горения.
Особенностью топки ЗП-РПК является пневмомеханический забрасыватель типа ЗП, обеспечивающий совокупность двух типов подачи топлива: подача крупного топлива на решетку слоями и подача мелких частиц топлива потоком воздуха непосредственно в топочное пространство, что обеспечивает полноценное сжигание горючего без потерь из-за несгоревшей пыли.
Условное обозначение
Водогрейный котел КВм-{{moshchnost-mvt}} на угле с ЗП-РПК, где:
- К – котел;
- В – водогрейный;
- м – механическая топка;
- {{moshchnost-mvt}} – мощность котла, МВт;
- З – забрасыватель;
- П – пневмомеханический;
- Р – решетка;
- П – поворотная;
- К – колосниковая.
Особенности и преимущества
- КПД более 80% обеспечивается за счет большой топливной камеры и системы вентиляции, обеспечивающих полноценное и равномерное сгорание топлива, что помогает рационально использовать и экономить горючее.
- Низкая температура газов сохраняется за счет развитой конвективной поверхности, что увеличивает срок службы оборудования.
- Низкие требования к качеству воды избавляют от необходимости подготавливать воду перед использованием.
- Автоматизация работы котельной за счет механической топки.
- Минимальные монтажные работы позволят сэкономить время и средства при установке котельного оборудования.
Размещение и установка
Изделие устанавливается в специально оборудованные котельные. Топка ЗП-РПК устанавливается на подготовленной поверхности в котельной, после чего на ЗП-РПК устанавливается сам котел. После установки основной конструкции, необходимо подключить систему к воде, поставить ряд специальных приборов (зажимы, счетчики), а также вентиляционное охлаждение. В завершении монтажа котел КВм-{{moshchnost-mvt}} подключается к системе щита контроля топки.
Эксплуатация и техническое обслуживание
После сборки и монтажа котел подключается к водопроводной системе и начинает работу. Котел КВм-{{moshchnost-mvt}} работает автономно и не требует вмешательства человека в процессе своей работы. Помимо простоты использования котел КВм-{{moshchnost-mvt}} имеет еще и длительный срок службы с сохранением высокого показателя КПД на протяжении всего срока.
Важно отметить, что производить ремонтные работы и техническое обслуживание могут только квалифицированные специалисты, имеющие специальное разрешение. При организации технического обслуживания следует учитывать требования «Правил устройства и безопасной эксплуатации паровых и водогрейных котлов».
Комплектация
Котел КВм-{{moshchnost-mvt}} поставляется в виде двух блоков (блок котла и блока топки) с щитком управления. Котел укомплектован всем необходимым для правильной установки: клапанами, запорной арматурой и КИП.














