Устройство и принцип работы
КВм-3 сочетает компактные размеры и оптимальные технические характеристики, которые позволяют изделию выходить на номинальную мощность в течение нескольких часов (от двух до четырех) после запуска. Система устроена таким образом, что при движении воды не образуется застойных зон, а также неравномерного прогревания. Топливо полностью выгорает, поэтому вероятность недожога довольно низкая.
Линейка котлов обладает высокими показателями КПД (среднестатистический диапазон в области от 80% до 90%), которые позволяют устройству эффективно справляться с нагреванием воды. Технические процессы, по которым производятся эти котлы позволяют потенциальному потребителю рассчитывать на длительный срок эксплуатации, высокую стабильность и надежность работы.
Условное обозначение
Водогрейный котел КВм-3 на угле с ЗП-РПК, где:
- К – котел;
 - В – водогрейный;
 - м – механическая топка;
 - 3 – мощность котла, МВт;
 - З – забрасыватель;
 - П – пневмомеханический;
 - Р – решетка;
 - П – поворотная;
 - К – колосниковая.
 
Особенности и преимущества
- КПД более 80% обеспечивается за счет большой топливной камеры и системы вентиляции, обеспечивающих полноценное и равномерное сгорание топлива, что помогает рационально использовать и экономить горючее.
 - Низкая температура газов сохраняется за счет развитой конвективной поверхности, что увеличивает срок службы оборудования.
 - Низкие требования к качеству воды избавляют от необходимости подготавливать воду перед использованием.
 - Автоматизация работы котельной за счет механической топки.
 - Минимальные монтажные работы позволят сэкономить время и средства при установке котельного оборудования.
 
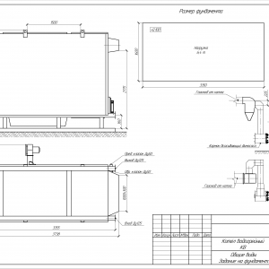
Размещение и установка
Котел КВм-3 на угле с топкой ЗП-РПК поставляется в удобном двублочном исполнении в полной заводской сборке, и легко стыкуются при монтаже. Устанавливается на предварительно выровненную поверхность без необходимости в строительстве специального фундамента. Крепится к поверхности при помощи анкерных болтов.
Монтаж котельного оборудования производится с соблюдением СНиП 11-35-76 «Котельные установки» и «Правил устройства и безопасной эксплуатации паровых и водогрейных котлов». Установка и пуско-наладочные работы выполняют специалисты, которые имеют разрешение на проведение данных работ.
Эксплуатация и техническое обслуживание
После сборки и монтажа котел подключается к водопроводной системе и начинает работу. Котел КВм-3 работает автономно и не требует вмешательства человека в процессе своей работы. Помимо простоты использования котел КВм-3 имеет еще и длительный срок службы с сохранением высокого показателя КПД на протяжении всего срока.
Важно отметить, что производить ремонтные работы и техническое обслуживание могут только квалифицированные специалисты, имеющие специальное разрешение. При организации технического обслуживания следует учитывать требования «Правил устройства и безопасной эксплуатации паровых и водогрейных котлов».
Комплектация
Котел КВм-3 поставляется в виде двух блоков (блок котла и блока топки) с щитком управления. Котел укомплектован всем необходимым для правильной установки: клапанами, запорной арматурой и КИП.














