Устройство и принцип работы
Комплект водогрейного котла КВм-{{moshchnost-mvt}} и механической топки ТЧЗМ собирается в единый корпус по вертикальной схеме – внизу располагается угольная топка, над ней устанавливается блок котла. Корпус изготавливается из металлического жаростойкого листа и обшивается теплоизоляцией.
Совмещение механического и пневматического принципов забрасывания топлива обеспечивают непрерывную подачу новых порций топлива на горящий слой. Топка ТЧЛЗ оснащена чешуйчатым колосниковым полотном, состоящим из ведущих цепей. Чешуйчатая решетка с обратным движением способствует нижнему сжиганию топлива и стабильному горению.
Условное обозначение
Водогрейный котел КВм-{{moshchnost-mvt}} на угле с ТЧЗМ, где:
- К – котел;
- В – водогрейный;
- м – механическая топка;
- {{moshchnost-mvt}} – мощность котла, МВт;
- Т – топка;
- Ч – чешуйчатое полотно;
- З – забрасыватель;
- М – механическая.
Особенности и преимущества
- КПД более 80% обеспечивается за счет большой топливной камеры и системы вентиляции, обеспечивающих полноценное и равномерное сгорание топлива, что помогает рационально использовать и экономить горючее.
- Низкая температура газов сохраняется за счет развитой конвективной поверхности, что увеличивает срок службы оборудования.
- Низкие требования к качеству воды избавляют от необходимости подготавливать воду перед использованием.
- Автоматизация работы котельной за счет механической топки.
- Механическая подача топлива минимизирует труд рабочих.
- Минимальные монтажные работы позволят сэкономить время и средства при установке котельного оборудования.
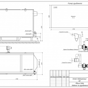
Размещение и установка
Процессом установки котла КВм-{{moshchnost-mvt}} должны заниматься специалисты, чтобы учесть все нюансы при монтаже. Перед установкой поверхность необходимо выровнять и залить фундамент, на который потом установится топка. Котел КВм-{{moshchnost-mvt}} ставят только на пол, поскольку он достаточно тяжелый. Чтобы к вентиляции был хороший доступ кислорода, необходимо все оборудование выставить согласно уровню. После того как все части котла собраны, его необходимо подсоединить к трубопроводу, а также подсоединить все дополнительные датчики и аппаратуру, для того чтобы осуществлять контроль за приборами на котельном оборудовании. В последнюю очередь устанавливают газоотвод, а также недостающие детали системы управления. Когда все собрано необходимо подключиться к водопроводу и запустить котел. Котел работает самостоятельно и не требует присутствия людей.
Эксплуатация и техническое обслуживание
После сборки и монтажа котел КВм-{{moshchnost-mvt}} подключается к водопроводной системе и начинает работу. Котел КВм-{{moshchnost-mvt}} работает автономно и не требует вмешательства человека в процессе своей работы. Помимо простоты использования котел КВм-{{moshchnost-mvt}} имеет еще и длительный срок службы с сохранением высокого показателя КПД на протяжении всего срока.
Важно отметить, что производить ремонтные работы и техническое обслуживание могут только квалифицированные специалисты, имеющие специальное разрешение. При организации технического обслуживания следует учитывать требования «Правил устройства и безопасной эксплуатации паровых и водогрейных котлов».
Комплектация
Котел КВм-{{moshchnost-mvt}} поставляется в виде двух блоков (блок котла и блока ТЧЗМ) с щитком управления. Котел укомплектован всем необходимым для правильной установки: клапанами, запорной арматурой и КИП.















