В наличии на складе

Котёл КВм-4,15 на угле с топкой ЗП-РПК

916 000

Доставим в

Основные характеристики
Вид топкиЗП-РПК
Вид топливаБурый уголь
ТипКВм
Вид топливаКаменный уголь

Котел КВм-{{moshchnost-mvt}} на угле с топкой ЗП-РПК – водогрейный агрегат с механической системой топливоподачи и шлакоудаления. Используется для получения горячей воды температурой до 115 °С, с последующим использованием нагретой жидкости в системах отопления и горячего водоснабжения объектов промышленности, жилых домой, складов, общественных и административных помещений. Работает с механической топкой ЗП-РПК на буром или каменном угле.

Характеристики

Цена, руб.
916000
Вид топки
ЗП-РПК
Вид топлива
Бурый уголь, Каменный уголь
Тип
КВм

Устройство и принцип работы

КВм-{{moshchnost-mvt}} сочетает компактные размеры и оптимальные технические характеристики, которые позволяют изделию выходить на номинальную мощность в течение нескольких часов (от двух до четырех) после запуска. Система устроена таким образом, что при движении воды не образуется застойных зон, а также неравномерного прогревания. Топливо полностью выгорает, поэтому вероятность недожога довольно низкая.

Линейка котлов обладает высокими показателями КПД (среднестатистический диапазон в области от 80% до 90%), которые позволяют устройству эффективно справляться с нагреванием воды. Технические процессы, по которым производятся эти котлы позволяют потенциальному потребителю рассчитывать на длительный срок эксплуатации, высокую стабильность и надежность работы.

Условное обозначение

Водогрейный котел КВм-{{moshchnost-mvt}} на угле с ЗП-РПК, где:

  • К – котел;
  • В – водогрейный;
  • м – механическая топка;
  • {{moshchnost-mvt}} – мощность котла, МВт;
  • З – забрасыватель;
  • П – пневмомеханический;
  • Р – решетка;
  • П – поворотная;
  • К – колосниковая.

Особенности и преимущества

  • КПД более 80% обеспечивается за счет большой топливной камеры и системы вентиляции, обеспечивающих полноценное и равномерное сгорание топлива, что помогает рационально использовать и экономить горючее.
  • Низкая температура газов сохраняется за счет развитой конвективной поверхности, что увеличивает срок службы оборудования.
  • Низкие требования к качеству воды избавляют от необходимости подготавливать воду перед использованием.
  • Автоматизация работы котельной за счет механической топки.
  • Минимальные монтажные работы позволят сэкономить время и средства при установке котельного оборудования.

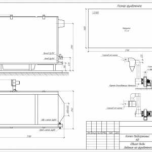
Размещение и установка

Котел КВм-{{moshchnost-mvt}} должен быть установлен специалистами. Котел имеет значительный вес, поэтому устанавливается только на пол, на специально подготовленную поверхность. Котел КВм-{{moshchnost-mvt}} устанавливается на подготовленный фундамент, к нему монтируется топка. Важно обеспечить доступ кислорода к вентиляционной системе и установить оборудование ровно, используя уровень. Далее собранный котел присоединяется к трубопроводу, устанавливаются запорные устройства, все необходимая арматура и контрольно-измерительные приборы. В конце производится монтаж газовыводящей системы и установка элементов управления.

Эксплуатация и техническое обслуживание

После сборки и монтажа котел подключается к водопроводной системе и начинает работу. Котел КВм-{{moshchnost-mvt}} работает автономно и не требует вмешательства человека в процессе своей работы. Помимо простоты использования котел КВм-{{moshchnost-mvt}} имеет еще и длительный срок службы с сохранением высокого показателя КПД на протяжении всего срока.

Важно отметить, что производить ремонтные работы и техническое обслуживание могут только квалифицированные специалисты, имеющие специальное разрешение. При организации технического обслуживания следует учитывать требования «Правил устройства и безопасной эксплуатации паровых и водогрейных котлов».

Комплектация

Котел КВм-{{moshchnost-mvt}} поставляется в виде двух блоков (блок котла и блока топки) с щитком управления. Котел укомплектован всем необходимым для правильной установки: клапанами, запорной арматурой и КИП.

Оглавление
Галерея производства
Бесплатная консультация
по любым вопросам
Или позвоните нам по телефону
8 (800) 200-38-85
Вы смотрели