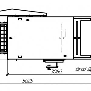
Устройство и принцип работы
Котел КВм-7.55 состоит из механической топки, системы трубопровода и каркаса, покрытого теплоизоляционным материалом. С фронта котла монтируется механическая топка. Из бункера топливо попадает в топку, где и происходит процесс горения. За счет выделившегося тепла происходит нагревание воды в системе трубопровода, которая уже направляется на нужды потребителя. Для поддержания процесса горения на топочное полотно вентилятором подается воздух. Газы, образовавшееся в процессе горения, дважды проходят по конвективной части, а затем выводятся. Котел работает с уравновешенной тягой.
Условное обозначение
Водогрейный котел КВм-7.55 на угле, где:
- К – котел;
- В – водогрейный;
- м – механическая топка;
- 7.55 – мощность котла, МВт.
Особенности и преимущества
- Высокий показатель КПД;
- Развитая конвективная поверхность, способствующая увеличению срока службы оборудования;
- Отсутствие водоподготовки;
- Автоматизация топливоподачи и шлаковыведения;
- Компактный размер.
Размещение и установка
Следование нормативным требованиям при монтаже обеспечит безопасную и продолжительную эксплуатацию твердотопливного котла КВм-7.55.
Котельные должны иметь хорошую вентиляцию (сечение канала вентиляции: от 80 мм на 1 кВт мощности котла), площадь не менее 7 м2. Покрытие пола и стен котельной негорючими материалами — обязательно.
При монтаже котла КВм-7.55 необходимо предусмотреть расстояния между задней стенкой котла и стеной помещения (≤60 см); зазор между передней частью и стеной (≤ 25 см).
Требования к монтажу котлов регламентируются СНиП «Отопление и вентиляция».
Эксплуатация и техническое обслуживание
За счет механической топки и системы шлакоотведения, котел КВм-7.55 работает автономно. Все ремонтные работы, включая технические осмотры, должны проводиться квалифицированными специалистами, которые имеют специальное разрешение. При организации технического обслуживания следует учитывать требования «Правил устройства и безопасной эксплуатации паровых и водогрейных котлов».
Комплектация
Котел КВм-7.55 поставляется в виде двух блоков (блок котла и механическая топка) с щитком управления. Котел укомплектован всем необходимым для правильной установки: клапанами, запорной арматурой и КИП.













