Устройство и принцип работы
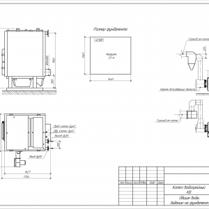
Котел КВР-0.25 на древесных отходах с топкой ОУР состоит из опорной рамы, стальных труб и каркаса. Древесину загружают вручную, вода нагревается и циркулирует по системе. Газы проходят по конвективной части несколько раз, а потом выводятся через отверстие на задней стенке. Чтобы было удобно чистить котел, в верху находится люк. Остатки горения необходимо вручную переместить водоотвод, и вывести из топливной системы. При желании можно установить механическую подачу топлива.
Чтобы топливо лучше сгорало к такому виду котла устанавливают ручное топочное устройство ОУР. Топка ОУР – имеет вид решетки, которая состоит из труб, по которым течет холодная вода под углом. Воздух распределяется по всей площади, за счет перфорации, которая проходит по всей длине угла. Воздух попадает за счет работы вентилятора. Благодаря такой работе древесина сжигается в полукипящем слое и исключает механический или химический недожог.
Полукипящий слой получается из-за того, что мелкие частицы двигаются и на них дует поток воздуха, который дает вентилятор. Во время движения мелкие помогают более крупным частицам разогреться и начинает гореть верхний слой древесины. Поэтому именно в полукипящем слое происходит полное сжигания топлива и минимальный выброс золы.
Конструкция котла может быть моноблочной или двухблочной, количество блоков зависит от мощности котла. Монтаж блоков не сложный. Перед установкой котла необходимо подготовить поверхность под него. Котел достаточно тяжелый и устанавливать его необходимо только на бетонный пол, и закрепить болтами. Поскольку котел работает на древесном топливе, необходимо предусмотреть место для хранения топлива.
Условное обозначение
Водогрейный котел КВр-0.25 на древесных отходах с топкой ОУР, где:
- К – котел;
 - В – водогрейный;
 - р – ручная топка;
 - 0.25 – мощность котла, МВт;
 - О – охлаждаемая;
 - У – угловая;
 - Р – решетка.
 
Особенности и преимущества
- Незначительные затраты за счет использования отходов древесной промышленности в качестве топлива;
 - Экономичность расхода топлива за счет его полноценного сгорания;
 - Адаптивная система сжигания топлива;
 - Значительное повышение КПД котельного оборудования (от 80% и более);
 - Надежность и долгосрочность эксплуатации котла за счет примитивного механизма;
 - Нет необходимости в специальной водоподготовке.
 
Размещение и установка
Котел КВр-0.25 на древесных отходах с топкой ОУР поставляется в удобном двублочном исполнении (котел и топка) в полной заводской сборке, и легко стыкуются при монтаже. Устанавливается на предварительно выровненную поверхность без необходимости в строительстве специального фундамента. Крепится к поверхности при помощи анкерных болтов.
Монтаж котельного оборудования производится с соблюдением СНиП 11-35-76 «Котельные установки» и «Правил устройства и безопасной эксплуатации паровых и водогрейных котлов». Установка и пуско-наладочные работы выполняют специалисты, которые имеют разрешение на проведение данных работ.
Эксплуатация и техническое обслуживание
Производить ремонтные работы и техническое обслуживание могут только квалифицированные специалисты, имеющие специальное разрешение. При организации технического обслуживания следует учитывать требования «Правил устройства и безопасной эксплуатации паровых и водогрейных котлов».
Комплектация
Водогрейные котлы КВр-0.25 доставляются в максимально собранном заводском виде и комплектуются всем необходимым для правильной установки прибора: запорной арматурой, контрольно-измерительными приборами и инструкцией по эксплуатации. Поставляется в комплекте с топкой (ОУР).
























