Устройство и принцип работы
Котел КВр-0.45 имеет двухблочное горизонтальное строение, состоящее из ручной слоевой топки и котельного блока с конвективным газоходом, внутри которого циркулирует нагреваемая жидкость. Два блока котельного агрегата соединены в единую сварную конструкцию, защищенную теплоизоляцией. Топливо в котлах КВр-0.45 подается вручную, так же как и удаление прогоревших остатков вычищается из зольной камеры. Для подачи ДВО на колосниковую решетку в системе предусмотрена вместительная топочная дверца. Чтобы очистить зольник от провалившихся золы и шлака в котле предусмотрены боковые люки. При необходимости, помимо древесных отходов ручная топка котла КВр-0.45 может потреблять и другие виды твердого топлива: дрова или уголь.
Условное обозначение
Водогрейный котел КВр-0.45 на древесных отходах, где:
- К – котел;
 - В – водогрейный;
 - р – ручная топка;
 - 0.45 – мощность котла, МВт.
 
Особенности и преимущества
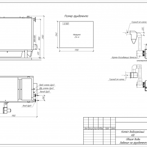
Котел состоит из следующих конструктивно важных элементов: ручная топка, емкость для сгорания, выхлопная труба, емкость для сбора отходов горения (зола, пыль, сажа), а также емкость для нагрева воды, а также терминал важных параметров работы котла. Принцип работы устройства прост. Топливо засыпается вручную топку, затем происходит воспламенение топлива и его сгорание в камере. Тепло выделившееся в процессе горения нагревает находящееся в емкости воду, которая циркулирует в системе. Выделившиеся в процессе горения газы уходят через выхлопную трубу в атмосферу, а твердый остаток (зола, пыль, сажа) скатываются в специальный контейнер для сбора отходов. Для повышенной безопасности установлен специальный терминал для контроля главных параметров работы котла (давление в резервуаре с водой, температура воды и так далее). Для постоянной работы котла нужно постоянно подкидывать в него топливо. Лучше, чтобы оно было смесью горючих веществ (древесные опилки, торф, угольные фракции), в таком случае прогорание будет более интенсивным и качественным.
Размещение и установка
Дровяной котел КВр-0.45 устанавливается на специально подготовленный фундамент и крепится анкерными болтами. Важно обеспечить ровную установку котла и обеспечить воздухоподачу к топке. Далее котел присоединяется к средствам водоснабжения, устанавливается вся запорная арматура и КИП, устанавливаются система отвода газов и элементы управления.
Эксплуатация и техническое обслуживание
За счет простого устройства, котел КВр-0.45 имеет долгий срок службы и простые условия эксплуатации. Котел может работать сразу после установки, после полного осмотра и тестового запуска. Производить ремонтные работы и техническое обслуживание могут только квалифицированные специалисты с разрешением на данный вид деятельности.
Комплектация
Котлы КВр-0.45 доставляются в максимально собранном заводском виде и комплектуются всем необходимым для правильной установки прибора: запорной арматурой, контрольно-измерительными приборами, частями вентиляционной системы, дымососом и золоуловителем, если есть необходимость очистки дымовых газов.














