Устройство и принцип работы
Дровяной котел КВр-0.5 с ручной топкой – это конструкция из стальных труб, опорной рамы и теплоизолированного каркаса. Топливо вручную загружается в топку, вода нагревается горячими газами, образовавшимися в результате сжигания горючего, и циркулирует по трубопроводной системе. Газы проходят два раза по конвективной части, после чего выводятся через заднюю стенку. Для удобства чистки нагревающихся поверхностей, в верхней части котла имеется специальный люк. Оставшийся после сгорания топлива шлак вручную транспортируется в золоотвод и выводится из топливной системы. Есть возможность установки механических систем подачи топлива.
Существует два типа топок для дровяного котла КВр-0.5: с колосниковой или с радиальной воздухораспределительной решеткой. В обоих случаях в процессе сгорания топлива на решетку начинается подача воздуха, что способствует процессу горения и полноценному сжиганию горючего. В котле с топкой с колосниковой решеткой приток воздуха обеспечивается вентилятором или тягой через отверстия особой формы. В котле с топкой с радиальной воздухораспределительной решеткой приток кислорода происходит через отверстия в трубах. В таком случае, степень подачи воздуха можно регулировать. Данный тип топки подходит для сжигания даже низкосортного топлива.
Условное обозначение
Водогрейный котел КВр-0.5 на древесных отходах, где:
- К – котел;
 - В – водогрейный;
 - р – ручная топка;
 - 0.5 – мощность котла, МВт.
 
Особенности и преимущества
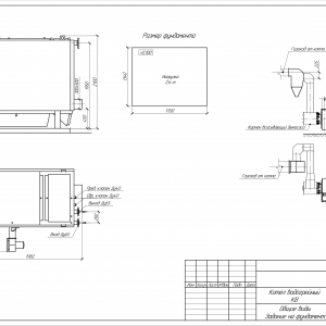
Котел состоит из следующих конструктивно важных элементов: ручная топка, емкость для сгорания, выхлопная труба, емкость для сбора отходов горения (зола, пыль, сажа), а также емкость для нагрева воды, а также терминал важных параметров работы котла. Принцип работы устройства прост. Топливо засыпается вручную топку, затем происходит воспламенение топлива и его сгорание в камере. Тепло выделившееся в процессе горения нагревает находящееся в емкости воду, которая циркулирует в системе. Выделившиеся в процессе горения газы уходят через выхлопную трубу в атмосферу, а твердый остаток (зола, пыль, сажа) скатываются в специальный контейнер для сбора отходов. Для повышенной безопасности установлен специальный терминал для контроля главных параметров работы котла (давление в резервуаре с водой, температура воды и так далее). Для постоянной работы котла нужно постоянно подкидывать в него топливо. Лучше, чтобы оно было смесью горючих веществ (древесные опилки, торф, угольные фракции), в таком случае прогорание будет более интенсивным и качественным.
Размещение и установка
Котел КВр-0.5 на древесных отходах поставляется в удобном двублочном исполнении в полной заводской сборке, и легко стыкуются при монтаже. Устанавливается на предварительно выровненную поверхность без необходимости в строительстве специального фундамента. Крепится к поверхности при помощи анкерных болтов.
Монтаж котельного оборудования производится с соблюдением СНиП 11-35-76 «Котельные установки» и «Правил устройства и безопасной эксплуатации паровых и водогрейных котлов». Установка и пуско-наладочные работы выполняют специалисты, которые имеют разрешение на проведение данных работ.
Эксплуатация и техническое обслуживание
За счет простого устройства, котел КВр-0.5 имеет долгий срок службы и простые условия эксплуатации. Котел может работать сразу после установки, после полного осмотра и тестового запуска. Производить ремонтные работы и техническое обслуживание могут только квалифицированные специалисты с разрешением на данный вид деятельности.
Комплектация
Котлы КВр-0.5 доставляются в максимально собранном заводском виде и комплектуются всем необходимым для правильной установки прибора: запорной арматурой, контрольно-измерительными приборами, частями вентиляционной системы, дымососом и золоуловителем, если есть необходимость очистки дымовых газов.














