Устройство и принцип работы
Основными частями дровяного котла КВр-0,6 c колосниковой решеткой являются топка, система трубопровода и каркас, обшитый теплоизоляционными материалами. Топливо подается в топку, начинается процесс горения, в результате которого выделяется тепло и нагревается система трубопровода. Полученная горячая вода может использоваться как для отопления помещений, так и для обеспечения нужд горячего водоснабжения.
Газы, выделившиеся при горении, проходят дважды по конвективной части, чтобы теплоотдача была максимальной, после чего выводятся. Зола, оставшаяся в результате горения, вычищается вручную или посредством специального оборудования.
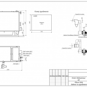
На задней стенке котла имеется специальная дверца для удобства чистки оборудования.
Особенности и преимущества
- Высокий показатель КПД;
 - Система полноценного сжигания именно древесного топлива;
 - Особа гидравлическая система, предотвращающая появление накипи;
 - Отсутствие водоподготовки;
 - Легкий монтаж;
 - Возможность установить оборудование для автоматизации процессов.
 
Размещение и установка
Дровяной котел КВр-0,6 c колосниковой решеткой устанавливается на специально подготовленный фундамент и крепится анкерными болтами. Важно обеспечить ровную установку котла и обеспечить воздухоподачу к топке. Далее котел присоединяется к средствам водоснабжения, устанавливается вся запорная арматура и КИП, устанавливаются система отвода газов и элементы управления.
Эксплуатация и техническое обслуживание
За счет простого устройства, котел КВр-0,6 на древесных отходах c колосниковой решеткой имеет долгий срок службы и простые условия эксплуатации. Котел может работать сразу после установки, после полного осмотра и тестового запуска. Производить ремонтные работы и техническое обслуживание могут только квалифицированные специалисты с разрешением на данный вид деятельности.








































