Устройство и принцип работы
Устройство водогрейного котла КВр-0.6 состоит из следующих составляющих: металлического корпуса, покрытого теплоизоляционным материалом, системы ручной подачи топлива в топку котла, собственно топки, предохранительной и запорной арматуры и контрольно-измерительных приборов.
Топка (ОУР) – это охлаждаемая угловая решетка. Механизм топки состоит из труб, охлаждаемых водой, с уголком между ними. Перфорация по длине угла способствует распределению воздуха по всей площади. Воздух подается с помощью вентиляторов. В совокупности получается технология, позволяющая сжигать топливо в полукипящем слое, что снижает его химический и механический недожог.
Полукипящий слой получается за счет движения мелких частиц топлива при воздействии на них движущегося потока воздуха от вентилятора и движения газов от горения. Во время такого движения в полукипящем слое мелкие частицы воздействую на крупные, разогревая их и удаляя шлаковую корку. Таким образом, в полукипящем слое происходит полноценное сжигание топлива с уменьшенным выбросом золы.
Условное обозначение
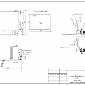
Водогрейный котел КВр-0.6 на древесных отходах с топкой ОУР, где:
- К – котел;
 - В – водогрейный;
 - р – ручная топка;
 - 0.6 – мощность котла, МВт;
 - О – охлаждаемая;
 - У – угловая;
 - Р – решетка.
 
Особенности и преимущества
- Незначительные затраты за счет использования отходов древесной промышленности в качестве топлива;
 - Экономичность расхода топлива за счет его полноценного сгорания;
 - Адаптивная система сжигания топлива;
 - Значительное повышение КПД котельного оборудования (от 80% и более);
 - Надежность и долгосрочность эксплуатации котла за счет примитивного механизма;
 - Нет необходимости в специальной водоподготовке.
 
Размещение и установка
Котел КВр-0.6 на древесных отходах с топкой ОУР поставляется в удобном двублочном исполнении (котел и топка) в полной заводской сборке, и легко стыкуются при монтаже. Устанавливается на предварительно выровненную поверхность без необходимости в строительстве специального фундамента. Крепится к поверхности при помощи анкерных болтов.
Монтаж котельного оборудования производится с соблюдением СНиП 11-35-76 «Котельные установки» и «Правил устройства и безопасной эксплуатации паровых и водогрейных котлов». Установка и пуско-наладочные работы выполняют специалисты, которые имеют разрешение на проведение данных работ.
Эксплуатация и техническое обслуживание
Производить ремонтные работы и техническое обслуживание могут только квалифицированные специалисты, имеющие специальное разрешение. При организации технического обслуживания следует учитывать требования «Правил устройства и безопасной эксплуатации паровых и водогрейных котлов».
Комплектация
Водогрейные котлы КВр-0.6 доставляются в максимально собранном заводском виде и комплектуются всем необходимым для правильной установки прибора: запорной арматурой, контрольно-измерительными приборами и инструкцией по эксплуатации. Поставляется в комплекте с топкой (ОУР).
































