Устройство и принцип работы
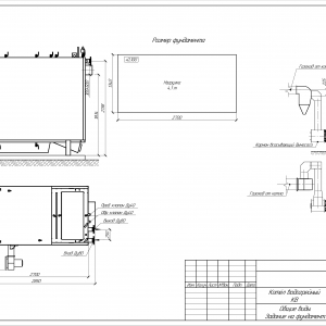
Котел КВр-1.35 имеет двухблочное горизонтальное строение, состоящее из ручной слоевой топки и котельного блока с конвективным газоходом, внутри которого циркулирует нагреваемая жидкость. Два блока котельного агрегата соединены в единую сварную конструкцию, защищенную теплоизоляцией. Топливо в котлах КВр-1.35 подается вручную, так же как и удаление прогоревших остатков вычищается из зольной камеры. Для подачи ДВО на колосниковую решетку в системе предусмотрена вместительная топочная дверца. Чтобы очистить зольник от провалившихся золы и шлака в котле предусмотрены боковые люки. При необходимости, помимо древесных отходов ручная топка котла КВр-1.35 может потреблять и другие виды твердого топлива: дрова или уголь.
Условное обозначение
Водогрейный котел КВр-1.35 на древесных отходах, где:
- К – котел;
- В – водогрейный;
- р – ручная топка;
- 1.35 – мощность котла, МВт.
Особенности и преимущества
- Высокий показатель КПД;
- Система полноценного сжигания именно древесного топлива;
- Особа гидравлическая система, предотвращающая появление накипи;
- Отсутствие водоподготовки;
- Легкий монтаж;
- Возможность установить оборудование для автоматизации процессов.
Размещение и установка
Котел КВр-1.35 на древесных отходах поставляется в удобном двублочном исполнении в полной заводской сборке, и легко стыкуются при монтаже. Устанавливается на предварительно выровненную поверхность без необходимости в строительстве специального фундамента. Крепится к поверхности при помощи анкерных болтов.
Монтаж котельного оборудования производится с соблюдением СНиП 11-35-76 «Котельные установки» и «Правил устройства и безопасной эксплуатации паровых и водогрейных котлов». Установка и пуско-наладочные работы выполняют специалисты, которые имеют разрешение на проведение данных работ.
Эксплуатация и техническое обслуживание
Водогрейный котел КВр-1.35 очень прост и понятен в эксплуатации. После монтажа котел подключается к водопроводной системе и начинает работу. Котел КВр-1.35 достаточно автономны, вмешательство человека требуется только для загрузки топлива, вычищения шлака и общего контроля работы. Котел не требует специальной подготовки воды, однако подготовленная воды может увеличить коэффициент полезного действия. Помимо простоты использования котел КВр-1.35 имеет еще и более длительный срок службы, чем, например, простой бойлер.
Важно отметить, что производить ремонтные работы и техническое обслуживание могут только квалифицированные специалисты, имеющие специальное разрешение. При организации технического обслуживания следует учитывать требования «Правил устройства и безопасной эксплуатации паровых и водогрейных котлов».
Комплектация
Котлы КВр-1.35 доставляются в максимально собранном заводском виде и комплектуются всем необходимым для правильной установки прибора: запорной арматурой, контрольно-измерительными приборами, частями вентиляционной системы, дымососом и золоуловителем, если есть необходимость очистки дымовых газов.












