Устройство и принцип работы
Конструкция водогрейного котла КВр-1.85 состоит из двух частей: блока котла и ручной топки, обшитых в единый корпус из жаростойкой стали с теплоизоляционным материалом. В котельном блоке размещена трубная система с конвективной поверхностью нагрева, в топке – колосниковая решетка с отверстиями для провала остатков горения в зольник, который расположен под топкой.
Колосниковая решетка представляет собой часть отопительной гарнитуры для слоевого сжигания твердого топлива. Она собирается из нескольких чугунных колосников, количество которых определяет размер всей детали – длину и ширину решетки. В зависимости от габаритов топочной камеры, колосниковая решетка может быть стандартного размера – под определенную топку, либо изготавливаться по техническому заданию – для топок большого размера.
В колосниковой решетке предусмотрены специальные отверстия для провала прогоревшего топлива в зольную камеру, расположенную под топкой котла. Также, через это отверстия в топку поступают потоки воздуха, которые стимулируют процесс горения, доводя топливо до полного сжигания в слое. По мере сгорания, на решетку подается новая порция топлива, разравнивается и снова сжигается.
Условное обозначение
Водогрейный котел КВр-1.85 на угле, где:
- К – котел;
- В – водогрейный;
- р – ручная топка;
- 1.85 – мощность котла, МВт.
Особенности и преимущества
- КПД более 80% обеспечивается за счет большой топливной камеры, системы вентиляции, способствующих полноценному и равномерному сгоранию топлива, что помогает рационально использовать и экономить горючее;
- Эффективное сжигание угля позволит рационально использовать топливо, что снизит затраты на закупку;
- Устойчивость к накипеобразованию образуется благодаря гидравлической схеме, предотвращающей застои и появление накипи, появление которых снизило бы КПД при длительном использовании котла;
- Низкие требования к качеству воды избавляют от необходимости подготавливать воду перед использованием;
- Небольшой размер котла позволит уместить его даже в небольших котельных;
- Минимальные монтажные работы позволят сэкономить время и средства при установке котельного оборудования.
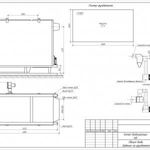
Размещение и установка
Процесс установки котла КВр-1.85 зависит от его мощности, так как они могут быть моноблочными и двухблочными. Отдельным блоком поставляется топка. Перед установкой оборудования на место его монтажа, необходимо произвести сборку всех узлов агрегата.
Угольный котел КВр-1.85 устанавливается на специально подготовленный фундамент и крепится анкерными болтами. Важно обеспечить ровную установку котла и обеспечить воздухоподачу к топке. Далее котел присоединяется к средствам водоснабжения, устанавливается вся запорная арматура и КИП, устанавливаются система отвода газов и элементы управления.
Эксплуатация и техническое обслуживание
За счет простого устройства, котел КВр-1.85 имеет долгий срок службы и простые условия эксплуатации. Котел может работать сразу после установки, после полного осмотра и тестового запуска. Производить ремонтные работы и техническое обслуживание могут только квалифицированные специалисты с разрешением на данный вид деятельности.
Комплектация
Котлы КВр-1.85 доставляются в максимально собранном заводском виде и комплектуются всем необходимым для правильной установки прибора: запорной арматурой, контрольно-измерительными приборами, частями вентиляционной системы, дымососом и золоуловителем, если есть необходимость очистки дымовых газов.












