Устройство и принцип работы
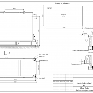
Дровяной котел КВр-2.25 с ручной топкой – это конструкция из стальных труб, опорной рамы и теплоизолированного каркаса. Топливо вручную загружается в топку, вода нагревается горячими газами, образовавшимися в результате сжигания горючего, и циркулирует по трубопроводной системе. Газы проходят два раза по конвективной части, после чего выводятся через заднюю стенку. Для удобства чистки нагревающихся поверхностей, в верхней части котла имеется специальный люк. Оставшийся после сгорания топлива шлак вручную транспортируется в золоотвод и выводится из топливной системы. Есть возможность установки механических систем подачи топлива.
Существует два типа топок для дровяного котла КВр-2.25: с колосниковой или с радиальной воздухораспределительной решеткой. В обоих случаях в процессе сгорания топлива на решетку начинается подача воздуха, что способствует процессу горения и полноценному сжиганию горючего. В котле с топкой с колосниковой решеткой приток воздуха обеспечивается вентилятором или тягой через отверстия особой формы. В котле с топкой с радиальной воздухораспределительной решеткой приток кислорода происходит через отверстия в трубах. В таком случае, степень подачи воздуха можно регулировать. Данный тип топки подходит для сжигания даже низкосортного топлива.
Условное обозначение
Водогрейный котел КВр-2.25 на древесных отходах, где:
- К – котел;
- В – водогрейный;
- р – ручная топка;
- 2.25 – мощность котла, МВт.
Особенности и преимущества
Котел состоит из следующих конструктивно важных элементов: ручная топка, емкость для сгорания, выхлопная труба, емкость для сбора отходов горения (зола, пыль, сажа), а также емкость для нагрева воды, а также терминал важных параметров работы котла. Принцип работы устройства прост. Топливо засыпается вручную топку, затем происходит воспламенение топлива и его сгорание в камере. Тепло выделившееся в процессе горения нагревает находящееся в емкости воду, которая циркулирует в системе. Выделившиеся в процессе горения газы уходят через выхлопную трубу в атмосферу, а твердый остаток (зола, пыль, сажа) скатываются в специальный контейнер для сбора отходов. Для повышенной безопасности установлен специальный терминал для контроля главных параметров работы котла (давление в резервуаре с водой, температура воды и так далее). Для постоянной работы котла нужно постоянно подкидывать в него топливо. Лучше, чтобы оно было смесью горючих веществ (древесные опилки, торф, угольные фракции), в таком случае прогорание будет более интенсивным и качественным.
Размещение и установка
Устанавливать котел КВР-2.25 на древесных отходах можно везде, он не представляет никакой опасности не для непосредственно обслуживающего персонала котла, не для жителей близлежащих территорий. Естественно, важно учитывать санитарно-защитную зону ведь при работе котла выделяются токсичные газовые вещества. Крайне важно обеспечить качественную циркуляцию воды в системе, чтобы она не перегревалась и не создавала дополнительное давление на стенки резервуара с водой и на трубную систему в целом.
Эксплуатация и техническое обслуживание
За счет простого устройства, котел КВр-2.25 имеет долгий срок службы и простые условия эксплуатации. Котел может работать сразу после установки, после полного осмотра и тестового запуска. Производить ремонтные работы и техническое обслуживание могут только квалифицированные специалисты с разрешением на данный вид деятельности.
Комплектация
Котлы КВр-2.25 доставляются в максимально собранном заводском виде и комплектуются всем необходимым для правильной установки прибора: запорной арматурой, контрольно-измерительными приборами, частями вентиляционной системы, дымососом и золоуловителем, если есть необходимость очистки дымовых газов.











