Устройство и принцип работы
Основными частями угольного котла КВр-2.45 являются топка, система трубопровода и каркас, обшитый теплоизоляционными материалами. Топливо подается в топку, начинается процесс горения, в результате которого выделяется тепло и нагревается система трубопровода. Полученная горячая вода может использоваться как для отопления помещений, так и для обеспечения нужд горячего водоснабжения.
Газы, выделившиеся при горении, проходят дважды по конвективной части, чтобы теплоотдача была максимальной, после чего выводятся. Шлак, оставшийся в результате горения, вычищается вручную или посредством специального оборудования.
На задней стенке котла имеется специальная дверца для удобства чистки оборудования.
Условное обозначение
Водогрейный котел КВр-2.45 на угле, где:
- К – котел;
- В – водогрейный;
- р – ручная топка;
- 2.45 – мощность котла, МВт.
Особенности и преимущества
- Высокий показатель КПД;
- Полноценное сжигание топлива;
- Особая гидравлическая схема, предотвращающая образование накипи;
- Отсутствие водоподготовки;
- Компактность котла;
- Возможность установить оборудование, способствующее автоматизации процессов.
Размещение и установка
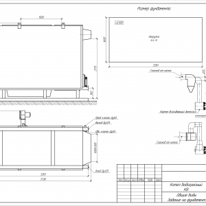
Процесс установки котла КВр-2.45 зависит от его мощности, так как они могут быть моноблочными и двухблочными. Отдельным блоком поставляется топка. Перед установкой оборудования на место его монтажа, необходимо произвести сборку всех узлов агрегата.
Угольный котел КВр-2.45 устанавливается на специально подготовленный фундамент и крепится анкерными болтами. Важно обеспечить ровную установку котла и обеспечить воздухоподачу к топке. Далее котел присоединяется к средствам водоснабжения, устанавливается вся запорная арматура и КИП, устанавливаются система отвода газов и элементы управления.
Эксплуатация и техническое обслуживание
За счет простого устройства, котел КВр-2.45 имеет долгий срок службы и простые условия эксплуатации. Котел может работать сразу после установки, после полного осмотра и тестового запуска. Производить ремонтные работы и техническое обслуживание могут только квалифицированные специалисты с разрешением на данный вид деятельности.
Комплектация
Котлы КВр-2.45 доставляются в максимально собранном заводском виде и комплектуются всем необходимым для правильной установки прибора: запорной арматурой, контрольно-измерительными приборами, частями вентиляционной системы, дымососом и золоуловителем, если есть необходимость очистки дымовых газов.












