Устройство и принцип работы
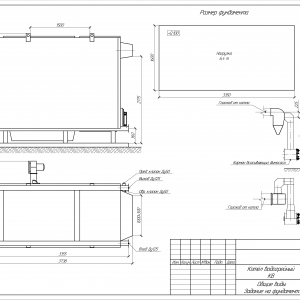
Котел КВр-2.5 имеет двухблочное горизонтальное строение, состоящее из ручной слоевой топки и котельного блока с конвективным газоходом, внутри которого циркулирует нагреваемая жидкость. Два блока котельного агрегата соединены в единую сварную конструкцию, защищенную теплоизоляцией. Топливо в котлах КВр-2.5 подается вручную, так же как и удаление прогоревших остатков вычищается из зольной камеры. Для подачи ДВО на колосниковую решетку в системе предусмотрена вместительная топочная дверца. Чтобы очистить зольник от провалившихся золы и шлака в котле предусмотрены боковые люки. При необходимости, помимо древесных отходов ручная топка котла КВр-2.5 может потреблять и другие виды твердого топлива: дрова или уголь.
Условное обозначение
Водогрейный котел КВр-2.5 на древесных отходах, где:
- К – котел;
- В – водогрейный;
- р – ручная топка;
- 2.5 – мощность котла, МВт.
Особенности и преимущества
- Высокий показатель КПД;
- Система полноценного сжигания именно древесного топлива;
- Особа гидравлическая система, предотвращающая появление накипи;
- Отсутствие водоподготовки;
- Легкий монтаж;
- Возможность установить оборудование для автоматизации процессов.
Размещение и установка
Устанавливать котел КВР-2.5 на древесных отходах можно везде, он не представляет никакой опасности не для непосредственно обслуживающего персонала котла, не для жителей близлежащих территорий. Естественно, важно учитывать санитарно-защитную зону ведь при работе котла выделяются токсичные газовые вещества. Крайне важно обеспечить качественную циркуляцию воды в системе, чтобы она не перегревалась и не создавала дополнительное давление на стенки резервуара с водой и на трубную систему в целом.
Эксплуатация и техническое обслуживание
За счет простого устройства, котел КВр-2.5 имеет долгий срок службы и простые условия эксплуатации. Котел может работать сразу после установки, после полного осмотра и тестового запуска. Производить ремонтные работы и техническое обслуживание могут только квалифицированные специалисты с разрешением на данный вид деятельности.
Комплектация
Котлы КВр-2.5 доставляются в максимально собранном заводском виде и комплектуются всем необходимым для правильной установки прибора: запорной арматурой, контрольно-измерительными приборами, частями вентиляционной системы, дымососом и золоуловителем, если есть необходимость очистки дымовых газов.











