Устройство и принцип работы
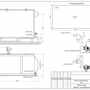
Котел КВр-3.9 имеет двухблочное горизонтальное строение, состоящее из ручной топки и котельного блока с конвективным газоходом, внутри которого циркулирует нагреваемая жидкость. Два блока котельного агрегата соединены в единую сварную конструкцию, защищенную теплоизоляцией.
Топка ОУР состоит из системы труб, которые охлаждаются водой, что исключает прогорание металлических поверхностей. Между ними расположен уголок, которых помогает воздуху равномерно заполнять всю площадь топки. Воздух в топку подается системой вентиляции, распложенной под решеткой. Таким образом топливо на решетке сжигается в полукипящем слое, который представляет собой промежуточное состояние топлива между неподвижным и кипящим слоем угля. Этот принцип сжигания топлива снижает химический и механический недожег.
Условное обозначение
Водогрейный котел КВр-3.9 на угле с топкой ОУР, где:
- К – котел;
- В – водогрейный;
- р – ручная топка;
- 3.9 – мощность котла, МВт;
- О – охлаждаемая;
- У – угловая;
- Р – решетка.
Особенности и преимущества
- КПД более 80% обеспечивается за счет большой топливной камеры, системы вентиляции, способствующих полноценному и равномерному сгоранию топлива, что помогает рационально использовать и экономить горючее;
- Эффективное сжигание угля за счет ОУР позволит рационально использовать топливо, что снизит затраты на закупку;
- Устойчивость к накипеобразованию образуется благодаря гидравлической схеме, предотвращающей застои и появление накипи, появление которых снизило бы КПД при длительном использовании котла;
- Низкие требования к качеству воды избавляют от необходимости подготавливать воду перед использованием;
- Небольшой размер котла позволит уместить его даже в небольших котельных;
- Минимальные монтажные работы позволят сэкономить время и средства при установке котельного оборудования.
Размещение и установка
Конструкция котла КВр-3.9 с ручной топкой различается в зависимости от мощности. Котел мощностью до 1,1 Гкал будет моноблочным, свыше 1,1 Гкал – двухблочным. При этом блоки легко монтируются.
Котел КВр-3.9 должен быть установлен специалистами. Котел имеет значительный вес, поэтому устанавливается только на пол, на специально подготовленную поверхность. К бетонному фундаменту котел прикрепляется болтами. Сначала производится установка нижней части контроллера. Здесь важно обеспечить доступ кислорода к вентиляционной системе и установить оборудование ровно, используя уровень. Далее котел присоединяется к трубопроводу, устанавливаются запорные устройства, все необходимая арматура и контрольно-измерительные приборы. В конце производится монтаж газовыводящей системы и установка элементов управления.
Эксплуатация и техническое обслуживание
Водогрейный котел КВр-3.9 очень прост в эксплуатации. После монтажа котел подключается к водопроводной системе и начинает работу. Котел КВр-3.9 достаточно автономен, вмешательство человека требуется только для загрузки топлива, вычищения шлака и общего контроля работы. Котел не требует специальной подготовки воды, однако подготовленная вода может увеличить коэффициент полезного действия. Помимо простоты использования котел КВр-3.9 имеет еще и более длительный срок службы, чем, например, простой бойлер.
Важно отметить, что производить ремонтные работы и техническое обслуживание могут только квалифицированные специалисты, имеющие специальное разрешение. При организации технического обслуживания следует учитывать требования «Правил устройства и безопасной эксплуатации паровых и водогрейных котлов».
Комплектация
Котлы КВр-3.9 доставляются в максимально собранном заводском виде и комплектуются всем необходимым для правильной установки прибора: запорной арматурой, контрольно-измерительными приборами, частями вентиляционной системы, дымососом и золоуловителем, если есть необходимость очистки дымовых газов.













