Устройство и принцип работы
Конструкция водогрейного котла КВр-3 состоит из двух частей: блока котла и ручной топки, обшитых в единый корпус из жаростойкой стали с теплоизоляционным материалом. В котельном блоке размещена трубная система с конвективной поверхностью нагрева, в топке – колосниковая решетка с отверстиями для провала остатков горения в зольник, который расположен под топкой.
Колосниковая решетка представляет собой часть отопительной гарнитуры для слоевого сжигания твердого топлива. Она собирается из нескольких чугунных колосников, количество которых определяет размер всей детали – длину и ширину решетки. В зависимости от габаритов топочной камеры, колосниковая решетка может быть стандартного размера – под определенную топку, либо изготавливаться по техническому заданию – для топок большого размера.
В колосниковой решетке предусмотрены специальные отверстия для провала прогоревшего топлива в зольную камеру, расположенную под топкой котла. Также, через это отверстия в топку поступают потоки воздуха, которые стимулируют процесс горения, доводя топливо до полного сжигания в слое. По мере сгорания, на решетку подается новая порция топлива, разравнивается и снова сжигается.
Условное обозначение
Водогрейный котел КВр-3 на угле, где:
- К – котел;
 - В – водогрейный;
 - р – ручная топка;
 - 3 – мощность котла, МВт.
 
Особенности и преимущества
- КПД более 80% обеспечивается за счет большой топливной камеры, системы вентиляции, способствующих полноценному и равномерному сгоранию топлива, что помогает рационально использовать и экономить горючее;
 - Эффективное сжигание угля позволит рационально использовать топливо, что снизит затраты на закупку;
 - Устойчивость к накипеобразованию образуется благодаря гидравлической схеме, предотвращающей застои и появление накипи, появление которых снизило бы КПД при длительном использовании котла;
 - Низкие требования к качеству воды избавляют от необходимости подготавливать воду перед использованием;
 - Небольшой размер котла позволит уместить его даже в небольших котельных;
 - Минимальные монтажные работы позволят сэкономить время и средства при установке котельного оборудования.
 
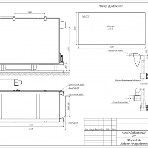
Размещение и установка
Котел КВр-3 на угле поставляется в удобном двублочном исполнении в полной заводской сборке, и легко стыкуются при монтаже. Устанавливается на предварительно выровненную поверхность без необходимости в строительстве специального фундамента. Крепится к поверхности при помощи анкерных болтов.
Монтаж котельного оборудования производится с соблюдением СНиП 11-35-76 «Котельные установки» и «Правил устройства и безопасной эксплуатации паровых и водогрейных котлов». Установка и пуско-наладочные работы выполняют специалисты, которые имеют разрешение на проведение данных работ.
Эксплуатация и техническое обслуживание
За счет простого устройства, котел КВр-3 имеет долгий срок службы и простые условия эксплуатации. Котел может работать сразу после установки, после полного осмотра и тестового запуска. Производить ремонтные работы и техническое обслуживание могут только квалифицированные специалисты с разрешением на данный вид деятельности.
Комплектация
Котлы КВр-3 доставляются в максимально собранном заводском виде и комплектуются всем необходимым для правильной установки прибора: запорной арматурой, контрольно-измерительными приборами, частями вентиляционной системы, дымососом и золоуловителем, если есть необходимость очистки дымовых газов.












