Устройство и принцип работы
Основными частями угольного котла КВр-4.35 являются топка, система трубопровода и каркас, обшитый теплоизоляционными материалами. Топливо подается в топку, начинается процесс горения, в результате которого выделяется тепло и нагревается система трубопровода. Полученная горячая вода может использоваться как для отопления помещений, так и для обеспечения нужд горячего водоснабжения.
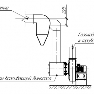
Газы, выделившиеся при горении, проходят дважды по конвективной части, чтобы теплоотдача была максимальной, после чего выводятся. Шлак, оставшийся в результате горения, вычищается вручную или посредством специального оборудования.
На задней стенке котла имеется специальная дверца для удобства чистки оборудования.
Условное обозначение
Водогрейный котел КВр-4.35 на угле, где:
- К – котел;
- В – водогрейный;
- р – ручная топка;
- 4.35 – мощность котла, МВт.
Особенности и преимущества
- Высокий показатель КПД;
- Полноценное сжигание топлива;
- Особая гидравлическая схема, предотвращающая образование накипи;
- Отсутствие водоподготовки;
- Компактность котла;
- Возможность установить оборудование, способствующее автоматизации процессов.
Размещение и установка
Котел КВр-4.35 на угле поставляется в удобном двублочном исполнении в полной заводской сборке, и легко стыкуются при монтаже. Устанавливается на предварительно выровненную поверхность без необходимости в строительстве специального фундамента. Крепится к поверхности при помощи анкерных болтов.
Монтаж котельного оборудования производится с соблюдением СНиП 11-35-76 «Котельные установки» и «Правил устройства и безопасной эксплуатации паровых и водогрейных котлов». Установка и пуско-наладочные работы выполняют специалисты, которые имеют разрешение на проведение данных работ.
Эксплуатация и техническое обслуживание
За счет простого устройства, котел КВр-4.35 имеет долгий срок службы и простые условия эксплуатации. Котел может работать сразу после установки, после полного осмотра и тестового запуска. Производить ремонтные работы и техническое обслуживание могут только квалифицированные специалисты с разрешением на данный вид деятельности.
Комплектация
Котлы КВр-4.35 доставляются в максимально собранном заводском виде и комплектуются всем необходимым для правильной установки прибора: запорной арматурой, контрольно-измерительными приборами, частями вентиляционной системы, дымососом и золоуловителем, если есть необходимость очистки дымовых газов.

















