Устройство и принцип работы
Угольный котел КВр-0 с ручной топкой – это теплоизолированный каркас и система трубопровода. Топливо вручную загружается в топку, вода нагревается горячими газами, образовавшимися в результате сжигания горючего, и циркулирует по трубопроводной системе. Газы проходят два раза по конвективной части, после чего выводятся через заднюю стенку. Для удобства чистки нагревающихся поверхностей, сверху у котла имеется специальный люк. Оставшийся после сгорания топлива шлак вручную переводится в золоотвод и выводится из топливной системы.
Существует две модификации котла КВр-0: с колосниковой или радиальной воздухораспределительной решеткой. В обоих случаях в процессе сгорания топлива на решетку начинается подача воздуха, что способствует процессу горения и полноценному сжиганию горючего. В котле с топкой с колосниковой решеткой приток воздуха обеспечивается вентилятором или тягой через отверстия особой формы. В котле с топкой с радиальной воздухораспределительной решеткой приток кислорода происходит через отверстия в трубах. В таком случае, степень подачи воздуха можно регулировать. Данный тип топки подходит для сжигания даже низкосортного топлива.
Условное обозначение
Водогрейный котел КВр-0 на угле, где:
- К – котел;
- В – водогрейный;
- р – ручная топка;
- 0 – мощность котла, МВт.
Особенности и преимущества
- КПД более 80% обеспечивается за счет большой топливной камеры, системы вентиляции, способствующих полноценному и равномерному сгоранию топлива, что помогает рационально использовать и экономить горючее;
- Эффективное сжигание угля позволит рационально использовать топливо, что снизит затраты на закупку;
- Устойчивость к накипеобразованию образуется благодаря гидравлической схеме, предотвращающей застои и появление накипи, появление которых снизило бы КПД при длительном использовании котла;
- Низкие требования к качеству воды избавляют от необходимости подготавливать воду перед использованием;
- Небольшой размер котла позволит уместить его даже в небольших котельных;
- Минимальные монтажные работы позволят сэкономить время и средства при установке котельного оборудования.
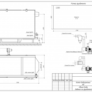
Размещение и установка
Конструкция котла КВр-0 с ручной топкой различается в зависимости от мощности. Котел мощностью до 1,1 Гкал будет моноблочным, свыше 1,1 Гкал – двухблочным. При этом блоки легко монтируются.
Котел КВр-0 должен быть установлен специалистами. Котел имеет значительный вес, поэтому устанавливается только на пол, на специально подготовленную поверхность. К бетонному фундаменту котел прикрепляется болтами. Сначала производится установка нижней части контроллера. Здесь важно обеспечить доступ кислорода к вентиляционной системе и установить оборудование ровно, используя уровень. Далее котел присоединяется к трубопроводу, устанавливаются запорные устройства, все необходимая арматура и контрольно-измерительные приборы. В конце производится монтаж газовыводящей системы и установка элементов управления.
Эксплуатация и техническое обслуживание
За счет простого устройства, котел КВр-0 имеет долгий срок службы и простые условия эксплуатации. Котел может работать сразу после установки, после полного осмотра и тестового запуска. Производить ремонтные работы и техническое обслуживание могут только квалифицированные специалисты с разрешением на данный вид деятельности.
Комплектация
Котлы КВр-0 доставляются в максимально собранном заводском виде и комплектуются всем необходимым для правильной установки прибора: запорной арматурой, контрольно-измерительными приборами, частями вентиляционной системы, дымососом и золоуловителем, если есть необходимость очистки дымовых газов.













