Устройство и принцип работы
Дровяной котел КВр-5.1 с ручной топкой – это конструкция из стальных труб, опорной рамы и теплоизолированного каркаса. Топливо вручную загружается в топку, вода нагревается горячими газами, образовавшимися в результате сжигания горючего, и циркулирует по трубопроводной системе. Газы проходят два раза по конвективной части, после чего выводятся через заднюю стенку. Для удобства чистки нагревающихся поверхностей, в верхней части котла имеется специальный люк. Оставшийся после сгорания топлива шлак вручную транспортируется в золоотвод и выводится из топливной системы. Есть возможность установки механических систем подачи топлива.
Существует два типа топок для дровяного котла КВр-5.1: с колосниковой или с радиальной воздухораспределительной решеткой. В обоих случаях в процессе сгорания топлива на решетку начинается подача воздуха, что способствует процессу горения и полноценному сжиганию горючего. В котле с топкой с колосниковой решеткой приток воздуха обеспечивается вентилятором или тягой через отверстия особой формы. В котле с топкой с радиальной воздухораспределительной решеткой приток кислорода происходит через отверстия в трубах. В таком случае, степень подачи воздуха можно регулировать. Данный тип топки подходит для сжигания даже низкосортного топлива.
Условное обозначение
Водогрейный котел КВр-5.1 на древесных отходах, где:
- К – котел;
- В – водогрейный;
- р – ручная топка;
- 5.1 – мощность котла, МВт.
Особенности и преимущества
Котел состоит из следующих конструктивно важных элементов: ручная топка, емкость для сгорания, выхлопная труба, емкость для сбора отходов горения (зола, пыль, сажа), а также емкость для нагрева воды, а также терминал важных параметров работы котла. Принцип работы устройства прост. Топливо засыпается вручную топку, затем происходит воспламенение топлива и его сгорание в камере. Тепло выделившееся в процессе горения нагревает находящееся в емкости воду, которая циркулирует в системе. Выделившиеся в процессе горения газы уходят через выхлопную трубу в атмосферу, а твердый остаток (зола, пыль, сажа) скатываются в специальный контейнер для сбора отходов. Для повышенной безопасности установлен специальный терминал для контроля главных параметров работы котла (давление в резервуаре с водой, температура воды и так далее). Для постоянной работы котла нужно постоянно подкидывать в него топливо. Лучше, чтобы оно было смесью горючих веществ (древесные опилки, торф, угольные фракции), в таком случае прогорание будет более интенсивным и качественным.
Размещение и установка
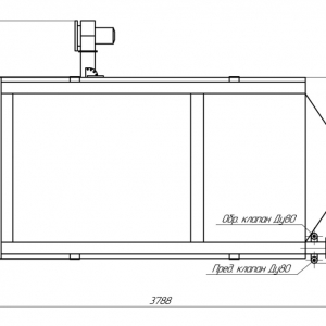
Конструкция котла КВр-5.1 с ручной топкой различается в зависимости от мощности. Котел мощностью до 1,1 Гкал будет моноблочным, свыше 1,1 Гкал – двухблочным. При этом блоки легко монтируются.
Котел КВр-5.1 должен быть установлен специалистами. Котел имеет значительный вес, поэтому устанавливается только на пол, на специально подготовленную поверхность. К бетонному фундаменту котел прикрепляется болтами. Сначала производится установка нижней части контроллера. Здесь важно обеспечить доступ кислорода к вентиляционной системе и установить оборудование ровно, используя уровень. Далее котел присоединяется к трубопроводу, устанавливаются запорные устройства, все необходимая арматура и контрольно-измерительные приборы. В конце производится монтаж газовыводящей системы и установка элементов управления. В случае использования дровяного котла важно иметь дополнительное помещение для хранения дров.
Эксплуатация и техническое обслуживание
Водогрейный котел КВр-5.1 очень прост и понятен в эксплуатации. После монтажа котел подключается к водопроводной системе и начинает работу. Котел КВр-5.1 достаточно автономны, вмешательство человека требуется только для загрузки топлива, вычищения шлака и общего контроля работы. Котел не требует специальной подготовки воды, однако подготовленная воды может увеличить коэффициент полезного действия. Помимо простоты использования котел КВр-5.1 имеет еще и более длительный срок службы, чем, например, простой бойлер.
Важно отметить, что производить ремонтные работы и техническое обслуживание могут только квалифицированные специалисты, имеющие специальное разрешение. При организации технического обслуживания следует учитывать требования «Правил устройства и безопасной эксплуатации паровых и водогрейных котлов».
Комплектация
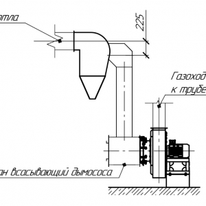
Котлы КВр-5.1 доставляются в максимально собранном заводском виде и комплектуются всем необходимым для правильной установки прибора: запорной арматурой, контрольно-измерительными приборами, частями вентиляционной системы, дымососом и золоуловителем, если есть необходимость очистки дымовых газов.













