Устройство и принцип работы
Угольный котел КВр-5.2 с ручной топкой – это теплоизолированный каркас и система трубопровода. Топливо вручную загружается в топку, вода нагревается горячими газами, образовавшимися в результате сжигания горючего, и циркулирует по трубопроводной системе. Газы проходят два раза по конвективной части, после чего выводятся через заднюю стенку. Для удобства чистки нагревающихся поверхностей, сверху у котла имеется специальный люк. Оставшийся после сгорания топлива шлак вручную переводится в золоотвод и выводится из топливной системы.
Угольный котел КВр-5.2 оснащен охлаждаемой топочной решеткой, на которой в полукипящем слое сжигается бурый, низкокалорийный и низкокачественный уголь.
ОУР состоит из труб, охлаждаемых водой, с уголком между ними. Перфорация по длине угла способствует распределению воздуха по всей площади. Воздух подается с помощью вентиляторов. В совокупности получается технология, позволяющая сжигать топливо в полукипящем слое, что снижает его химический и механический недожог. Охлаждение трубной решетки предохраняет от прогорания металла.
Полукипящий слой получается за счет движения мелких частиц топлива при воздействии на них движущегося потока воздуха от вентилятора и движения газов от горения. Во время такого движения в полукипящем слое мелкие частицы воздействую на крупные, разогревая их и удаляя шлаковую корку. Таким образом, в полукипящем слое происходит полноценное сжигание топлива с уменьшенным выбросом золы.
Условное обозначение
Водогрейный котел КВр-5.2 на угле с топкой ОУР, где:
- К – котел;
- В – водогрейный;
- р – ручная топка;
- 5.2 – мощность котла, МВт;
- О – охлаждаемая;
- У – угловая;
- Р – решетка.
Особенности и преимущества
Данный котел является очень компактным и универсальным устройством, не предъявляющим особых требований к составу топлива, и состоит из:
- топки ОУР, которая является ручной, состоит из короба, решетки из труб и стального уголка. Такая топка имеет принудительную подачу воздуха и создает полукипящий слой, дающий качественное сжигание даже невысокого по качеству топлива и уменьшение образования шлаков.
- система трубопроводов;
- каркас котла из теплоизоляционных материалов, обшитый поверх них сталью, способствующий эффективной работе устройства.
Данная конструкция является очень простой в эксплуатации и установке. Газы, образующиеся при горении топлива, дважды проходят по конвекторам, практически полностью отдавая полученное тепло воде, используемой, как для ГВС, так и для отопления. Таким образом и достигается высокий уровень теплопередачи и КПД данного устройства.
При этом данный котел нуждается, как в ручной подаче топлива в топку, так и в аналогичном вычищении шлака. Зато это устройство недорогое в цене, простое в обслуживании, компактное, универсальное и практичное, ведь он работает не только на каменном и буром угле, но и на дровах.
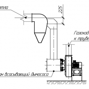
Размещение и установка
Котел КВр-5.2 на угле с топкой ОУР поставляется в удобном двублочном исполнении (котел и топка) в полной заводской сборке, и легко стыкуются при монтаже. Устанавливается на предварительно выровненную поверхность без необходимости в строительстве специального фундамента. Крепится к поверхности при помощи анкерных болтов.
Монтаж котельного оборудования производится с соблюдением СНиП 11-35-76 «Котельные установки» и «Правил устройства и безопасной эксплуатации паровых и водогрейных котлов». Установка и пуско-наладочные работы выполняют специалисты, которые имеют разрешение на проведение данных работ.
Эксплуатация и техническое обслуживание
Водогрейный котел КВр-5.2 очень прост в эксплуатации. После монтажа котел подключается к водопроводной системе и начинает работу. Котел КВр-5.2 достаточно автономен, вмешательство человека требуется только для загрузки топлива, вычищения шлака и общего контроля работы. Котел не требует специальной подготовки воды, однако подготовленная вода может увеличить коэффициент полезного действия. Помимо простоты использования котел КВр-5.2 имеет еще и более длительный срок службы, чем, например, простой бойлер.
Важно отметить, что производить ремонтные работы и техническое обслуживание могут только квалифицированные специалисты, имеющие специальное разрешение. При организации технического обслуживания следует учитывать требования «Правил устройства и безопасной эксплуатации паровых и водогрейных котлов».
Комплектация
Котлы КВр-5.2 доставляются в максимально собранном заводском виде и комплектуются всем необходимым для правильной установки прибора: запорной арматурой, контрольно-измерительными приборами, частями вентиляционной системы, дымососом и золоуловителем, если есть необходимость очистки дымовых газов.

















