Устройство и принцип работы
Угольный котел КВр-5.6 с ручной топкой – это теплоизолированный каркас и система трубопровода. Топливо вручную загружается в топку, вода нагревается горячими газами, образовавшимися в результате сжигания горючего, и циркулирует по трубопроводной системе. Газы проходят два раза по конвективной части, после чего выводятся через заднюю стенку. Для удобства чистки нагревающихся поверхностей, сверху у котла имеется специальный люк. Оставшийся после сгорания топлива шлак вручную переводится в золоотвод и выводится из топливной системы.
Угольный котел КВр-5.6 оснащен охлаждаемой топочной решеткой, на которой в полукипящем слое сжигается бурый, низкокалорийный и низкокачественный уголь.
ОУР состоит из труб, охлаждаемых водой, с уголком между ними. Перфорация по длине угла способствует распределению воздуха по всей площади. Воздух подается с помощью вентиляторов. В совокупности получается технология, позволяющая сжигать топливо в полукипящем слое, что снижает его химический и механический недожог. Охлаждение трубной решетки предохраняет от прогорания металла.
Полукипящий слой получается за счет движения мелких частиц топлива при воздействии на них движущегося потока воздуха от вентилятора и движения газов от горения. Во время такого движения в полукипящем слое мелкие частицы воздействую на крупные, разогревая их и удаляя шлаковую корку. Таким образом, в полукипящем слое происходит полноценное сжигание топлива с уменьшенным выбросом золы.
Условное обозначение
Водогрейный котел КВр-5.6 на угле с топкой ОУР, где:
- К – котел;
- В – водогрейный;
- р – ручная топка;
- 5.6 – мощность котла, МВт;
- О – охлаждаемая;
- У – угловая;
- Р – решетка.
Особенности и преимущества
- КПД более 80% обеспечивается за счет большой топливной камеры, системы вентиляции, способствующих полноценному и равномерному сгоранию топлива, что помогает рационально использовать и экономить горючее;
- Эффективное сжигание угля за счет ОУР позволит рационально использовать топливо, что снизит затраты на закупку;
- Устойчивость к накипеобразованию образуется благодаря гидравлической схеме, предотвращающей застои и появление накипи, появление которых снизило бы КПД при длительном использовании котла;
- Низкие требования к качеству воды избавляют от необходимости подготавливать воду перед использованием;
- Небольшой размер котла позволит уместить его даже в небольших котельных;
- Минимальные монтажные работы позволят сэкономить время и средства при установке котельного оборудования.
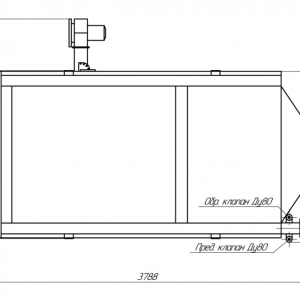
Размещение и установка
Данные устройства бывают одно- и двухблочные. К ним присоединяется топка ОУР, сам котел крепится анкерными болтами к фундаменту, который должен быть соответствующим образом выровнен с использованием уровня. Сначала ставится нижняя часть контроллера, здесь должен быть обеспечен доступ кислорода к вентиляционной системе. Потом наступает очередь присоединения трубопроводов, контрольных приборов, запорной арматуры. В самом конце уделяется внимание газовыводящей системе и элементам управления. Монтаж данного котла является несложным, но делать его должны только сертифицированные специалисты.
Эксплуатация и техническое обслуживание
Водогрейный котел КВр-5.6 очень прост в эксплуатации. После монтажа котел подключается к водопроводной системе и начинает работу. Котел КВр-5.6 достаточно автономен, вмешательство человека требуется только для загрузки топлива, вычищения шлака и общего контроля работы. Котел не требует специальной подготовки воды, однако подготовленная вода может увеличить коэффициент полезного действия. Помимо простоты использования котел КВр-5.6 имеет еще и более длительный срок службы, чем, например, простой бойлер.
Важно отметить, что производить ремонтные работы и техническое обслуживание могут только квалифицированные специалисты, имеющие специальное разрешение. При организации технического обслуживания следует учитывать требования «Правил устройства и безопасной эксплуатации паровых и водогрейных котлов».
Комплектация
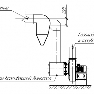
Котлы КВр-5.6 доставляются в максимально собранном заводском виде и комплектуются всем необходимым для правильной установки прибора: запорной арматурой, контрольно-измерительными приборами, частями вентиляционной системы, дымососом и золоуловителем, если есть необходимость очистки дымовых газов.

















