Устройство и принцип работы
Конструкция водогрейного котла КВр-5 состоит из двух частей: блока котла и ручной топки, обшитых в единый корпус из жаростойкой стали с теплоизоляционным материалом. В котельном блоке размещена трубная система с конвективной поверхностью нагрева, в топке – колосниковая решетка с отверстиями для провала остатков горения в зольник, который расположен под топкой.
Колосниковая решетка представляет собой часть отопительной гарнитуры для слоевого сжигания твердого топлива. Она собирается из нескольких чугунных колосников, количество которых определяет размер всей детали – длину и ширину решетки. В зависимости от габаритов топочной камеры, колосниковая решетка может быть стандартного размера – под определенную топку, либо изготавливаться по техническому заданию – для топок большого размера.
В колосниковой решетке предусмотрены специальные отверстия для провала прогоревшего топлива в зольную камеру, расположенную под топкой котла. Также, через это отверстия в топку поступают потоки воздуха, которые стимулируют процесс горения, доводя топливо до полного сжигания в слое. По мере сгорания, на решетку подается новая порция топлива, разравнивается и снова сжигается.
Условное обозначение
Водогрейный котел КВр-5 на угле, где:
- К – котел;
 - В – водогрейный;
 - р – ручная топка;
 - 5 – мощность котла, МВт.
 
Особенности и преимущества
- Высокий показатель КПД;
 - Полноценное сжигание топлива;
 - Особая гидравлическая схема, предотвращающая образование накипи;
 - Отсутствие водоподготовки;
 - Компактность котла;
 - Возможность установить оборудование, способствующее автоматизации процессов.
 
Размещение и установка
Процесс установки котла КВр-5 зависит от его мощности, так как они могут быть моноблочными и двухблочными. Отдельным блоком поставляется топка. Перед установкой оборудования на место его монтажа, необходимо произвести сборку всех узлов агрегата.
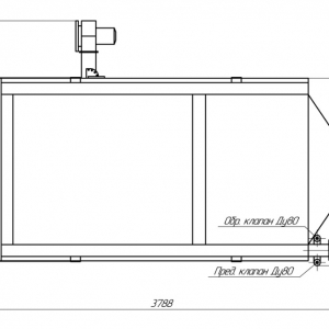
Угольный котел КВр-5 устанавливается на специально подготовленный фундамент и крепится анкерными болтами. Важно обеспечить ровную установку котла и обеспечить воздухоподачу к топке. Далее котел присоединяется к средствам водоснабжения, устанавливается вся запорная арматура и КИП, устанавливаются система отвода газов и элементы управления.
Эксплуатация и техническое обслуживание
Водогрейный котел КВр-5 очень прост в эксплуатации. После монтажа котел подключается к водопроводной системе и начинает работу. Котел КВр-5 достаточно автономен, вмешательство человека требуется только для загрузки топлива, вычищения шлака и общего контроля работы. Котел не требует специальной подготовки воды, однако подготовленная вода может увеличить коэффициент полезного действия. Помимо простоты использования котел КВр-5 имеет еще и более длительный срок службы, чем, например, простой бойлер.
Важно отметить, что производить ремонтные работы и техническое обслуживание могут только квалифицированные специалисты, имеющие специальное разрешение. При организации технического обслуживания следует учитывать требования «Правил устройства и безопасной эксплуатации паровых и водогрейных котлов».
Комплектация
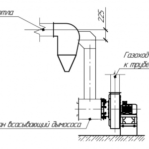
Котлы КВр-5 доставляются в максимально собранном заводском виде и комплектуются всем необходимым для правильной установки прибора: запорной арматурой, контрольно-измерительными приборами, частями вентиляционной системы, дымососом и золоуловителем, если есть необходимость очистки дымовых газов.

















