Устройство и принцип работы
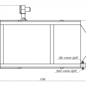
Котел КВр-6.1 имеет двухблочное горизонтальное строение, состоящее из ручной слоевой топки и котельного блока с конвективным газоходом, внутри которого циркулирует нагреваемая жидкость. Два блока котельного агрегата соединены в единую сварную конструкцию, защищенную теплоизоляцией. Топливо в котлах КВр-6.1 подается вручную, так же как и удаление прогоревших остатков вычищается из зольной камеры. Для подачи ДВО на колосниковую решетку в системе предусмотрена вместительная топочная дверца. Чтобы очистить зольник от провалившихся золы и шлака в котле предусмотрены боковые люки. При необходимости, помимо древесных отходов ручная топка котла КВр-6.1 может потреблять и другие виды твердого топлива: дрова или уголь.
Условное обозначение
Водогрейный котел КВр-6.1 на древесных отходах, где:
- К – котел;
- В – водогрейный;
- р – ручная топка;
- 6.1 – мощность котла, МВт.
Особенности и преимущества
- КПД более 80% обеспечивается за счет большой топливной камеры, системы вентиляции, способствующих полноценному и равномерному сгоранию топлива, что помогает рационально использовать и экономить горючее;
- Эффективное сжигание дровяного горючего позволит рационально использовать топливо, что снизит затраты на закупку;
- Устойчивость к накипеобразованию образуется благодаря гидравлической схеме, предотвращающей застои и появление накипи, появление которых снизило бы КПД при длительном использовании котла;
- Низкие требования к качеству воды избавляют от необходимости подготавливать воду перед использованием;
- Небольшой размер котла позволит уместить его даже в небольших котельных;
- Минимальные монтажные работы позволят сэкономить время и средства при установке котельного оборудования.
Размещение и установка
Конструкция котла КВр-6.1 с ручной топкой различается в зависимости от мощности. Котел мощностью до 1,1 Гкал будет моноблочным, свыше 1,1 Гкал – двухблочным. При этом блоки легко монтируются.
Котел КВр-6.1 должен быть установлен специалистами. Котел имеет значительный вес, поэтому устанавливается только на пол, на специально подготовленную поверхность. К бетонному фундаменту котел прикрепляется болтами. Сначала производится установка нижней части контроллера. Здесь важно обеспечить доступ кислорода к вентиляционной системе и установить оборудование ровно, используя уровень. Далее котел присоединяется к трубопроводу, устанавливаются запорные устройства, все необходимая арматура и контрольно-измерительные приборы. В конце производится монтаж газовыводящей системы и установка элементов управления. В случае использования дровяного котла важно иметь дополнительное помещение для хранения дров.
Эксплуатация и техническое обслуживание
За счет простого устройства, котел КВр-6.1 имеет долгий срок службы и простые условия эксплуатации. Котел может работать сразу после установки, после полного осмотра и тестового запуска. Производить ремонтные работы и техническое обслуживание могут только квалифицированные специалисты с разрешением на данный вид деятельности.
Комплектация
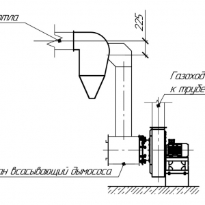
Котлы КВр-6.1 доставляются в максимально собранном заводском виде и комплектуются всем необходимым для правильной установки прибора: запорной арматурой, контрольно-измерительными приборами, частями вентиляционной системы, дымососом и золоуловителем, если есть необходимость очистки дымовых газов.














