Устройство и принцип работы
Конструкция водогрейного котла КВр-6.9 состоит из двух частей: блока котла и ручной топки, обшитых в единый корпус из жаростойкой стали с теплоизоляционным материалом. В котельном блоке размещена трубная система с конвективной поверхностью нагрева, в топке – колосниковая решетка с отверстиями для провала остатков горения в зольник, который расположен под топкой.
Колосниковая решетка представляет собой часть отопительной гарнитуры для слоевого сжигания твердого топлива. Она собирается из нескольких чугунных колосников, количество которых определяет размер всей детали – длину и ширину решетки. В зависимости от габаритов топочной камеры, колосниковая решетка может быть стандартного размера – под определенную топку, либо изготавливаться по техническому заданию – для топок большого размера.
В колосниковой решетке предусмотрены специальные отверстия для провала прогоревшего топлива в зольную камеру, расположенную под топкой котла. Также, через это отверстия в топку поступают потоки воздуха, которые стимулируют процесс горения, доводя топливо до полного сжигания в слое. По мере сгорания, на решетку подается новая порция топлива, разравнивается и снова сжигается.
Условное обозначение
Водогрейный котел КВр-6.9 на угле, где:
- К – котел;
- В – водогрейный;
- р – ручная топка;
- 6.9 – мощность котла, МВт.
Особенности и преимущества
- КПД более 80% обеспечивается за счет большой топливной камеры, системы вентиляции, способствующих полноценному и равномерному сгоранию топлива, что помогает рационально использовать и экономить горючее;
- Эффективное сжигание угля позволит рационально использовать топливо, что снизит затраты на закупку;
- Устойчивость к накипеобразованию образуется благодаря гидравлической схеме, предотвращающей застои и появление накипи, появление которых снизило бы КПД при длительном использовании котла;
- Низкие требования к качеству воды избавляют от необходимости подготавливать воду перед использованием;
- Небольшой размер котла позволит уместить его даже в небольших котельных;
- Минимальные монтажные работы позволят сэкономить время и средства при установке котельного оборудования.
Размещение и установка
Котел КВр-6.9 на угле поставляется в удобном двублочном исполнении в полной заводской сборке, и легко стыкуются при монтаже. Устанавливается на предварительно выровненную поверхность без необходимости в строительстве специального фундамента. Крепится к поверхности при помощи анкерных болтов.
Монтаж котельного оборудования производится с соблюдением СНиП 11-35-76 «Котельные установки» и «Правил устройства и безопасной эксплуатации паровых и водогрейных котлов». Установка и пуско-наладочные работы выполняют специалисты, которые имеют разрешение на проведение данных работ.
Эксплуатация и техническое обслуживание
Водогрейный котел КВр-6.9 очень прост в эксплуатации. После монтажа котел подключается к водопроводной системе и начинает работу. Котел КВр-6.9 достаточно автономен, вмешательство человека требуется только для загрузки топлива, вычищения шлака и общего контроля работы. Котел не требует специальной подготовки воды, однако подготовленная вода может увеличить коэффициент полезного действия. Помимо простоты использования котел КВр-6.9 имеет еще и более длительный срок службы, чем, например, простой бойлер.
Важно отметить, что производить ремонтные работы и техническое обслуживание могут только квалифицированные специалисты, имеющие специальное разрешение. При организации технического обслуживания следует учитывать требования «Правил устройства и безопасной эксплуатации паровых и водогрейных котлов».
Комплектация
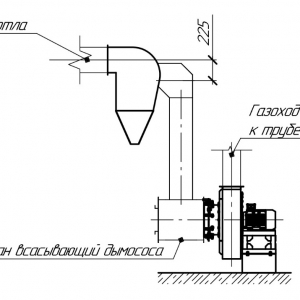
Котлы КВр-6.9 доставляются в максимально собранном заводском виде и комплектуются всем необходимым для правильной установки прибора: запорной арматурой, контрольно-измерительными приборами, частями вентиляционной системы, дымососом и золоуловителем, если есть необходимость очистки дымовых газов.

















